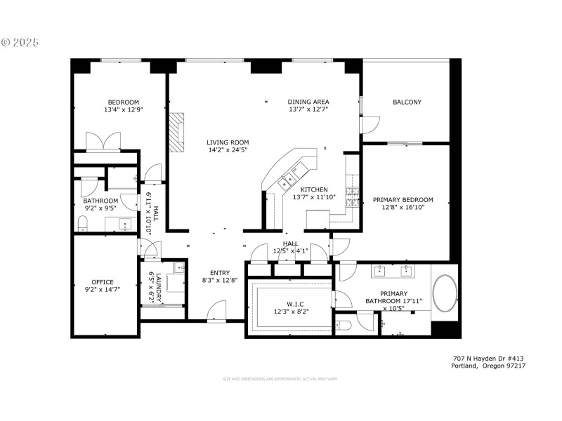
This Sun-filled Spacious Penthouse offers endless views of the Columbia River, Vancouver Skyline, and even a peek at Mt. St. Helens on a clear day. Enjoy hosting friends and family as the open-concept living, dining, and kitchen layout keeps you all connected; while the bedrooms on the furthest ends of the unit provide the option for separation of space. Bonus Room can be used as guest room, artist studio, home office or choose your own adventure. The kitchen boasts granite countertops, stainless steel appliances, and ample pantry and cupboard storage.Tucked away from the hustle and bustle this home effortlessly combines a luxurious feel with tranquility and convenience to the city. Keep track of your day by the passing of the planes beautifully seen, but most importantly, not heard from inside. Enjoy a cup of tea and your favorite book on the balcony by day. Watch the spectacular sunset views, cozy up by the fireplace, or unwind in your jacuzzi tub by night.Join the community events like Wine Wednesday or the Portland Ship Lights Parade. Other amenities include: a fitness center, two deeded parking spots, and a deeded storage unit. Two options for RV storage nearby. Close to golf, restaurants, and shopping. Surrounded by walking trails with Mt. Hood Views, the tranquility of the river, and the whimsy of waterfront living. This home is more than a condo—it’s a lifestyle. Grab your boat and come on down. Welcome to your new chapter. Welcome home.
Take exit 308 from I-5 (Hayden Island exit), Drive straight to Hayden Island Dr and Turn Right
Dwelling Type: Residential
Subdivision: N/A
Year Built: 2006, County: US
Take exit 308 from I-5 (Hayden Island exit), Drive straight to Hayden Island Dr and Turn Right
Listing is courtesy of Living Room Realty