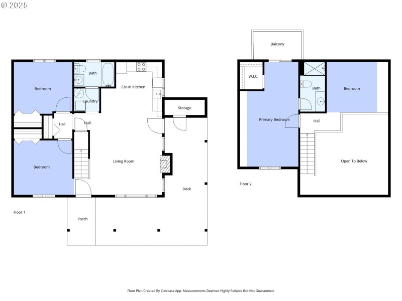
Looking for a turnkey, fully furnished short-term rental near Mt. Hood? This remodeled Timberline Rim home is ready to go. Updated in 2023 with all-new flooring, stylish finishes, and complete furnishings, it was designed with short-term rental use in mind and shows beautifully. The vaulted living room features warm cedar ceilings and a skylight that fills the space with natural light. Three bedrooms plus a loft provide flexible sleeping arrangements, while the primary suite includes vaulted ceilings, a walk-in closet, an en-suite bathroom, and private access to a second-story deck. Enjoy a private, fenced backyard and large covered front and side decks for year-round outdoor living. The Timberline Rim community offers access to the Sandy River, a lodge, swimming pool, tennis courts, and basketball court—all just minutes from Brightwood and Welches for dining and recreation. Located about an hour from Portland and close to the slopes of Mt. Hood, this fully furnished, move-in-ready home is an excellent option for a vacation property, rental investment, or full-time residence.
East Barlow Trail Rd to East Sandy River Lane to E Timberline DR
Dwelling Type: Residential
Subdivision: TIMBERLINE RIM
Year Built: 1979, County: US
East Barlow Trail Rd to East Sandy River Lane to E Timberline DR
Listing is courtesy of Premiere Property Group LLC