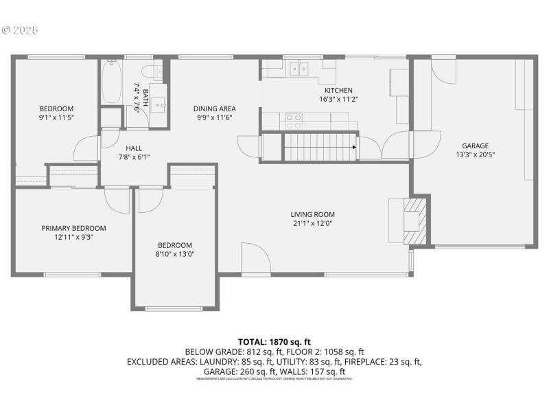
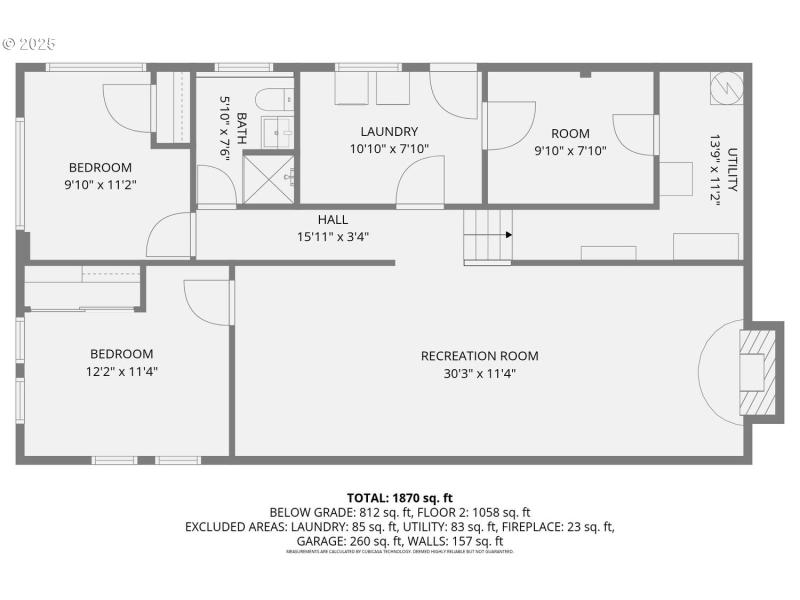
Comfortable, move-in-ready, and designed for flexibility. All-new flooring runs throughout most of the house, creating a fresh, cohesive look. The brand new remodeled basement expands your options— second living room, media room, office, gym, guest space, or playroom—complete with updated finishes and storage. Light-filled living and dining connect to an efficient kitchen for easy everyday living. Bring your pets: your backyard is fully fenced and has a producing apple tree. Set on a quiet residential street with convenient access to parks, shopping, and commuter routes. Plenty of parking, including possible RV parking in extra long driveway on the right side of garage. A clean, turn-key home with the extra space buyers need. New a/c and furnace 2023, roof 2018.
Take exit 13 from I-84 E/US-30 E, Continue on NE 181st Ave. Take SE 182nd Ave to SE 184th Ave
Dwelling Type: Residential
Subdivision: 97233
Year Built: 1959, County: US
Take exit 13 from I-84 E/US-30 E, Continue on NE 181st Ave. Take SE 182nd Ave to SE 184th Ave
Listing is courtesy of Keller Williams PDX Central