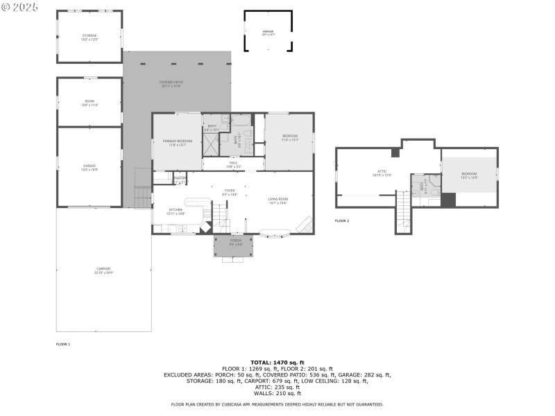
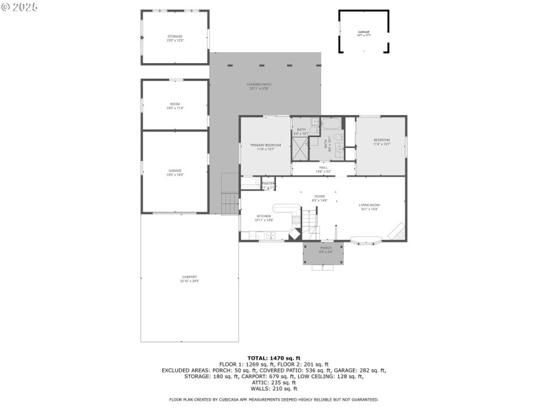
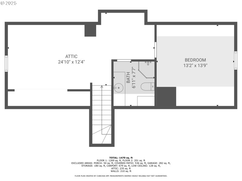
Spacious and full of charm, this 3-bedroom, 3-bathroom home offers room to spread out—inside and out. Enjoy two separate living rooms, perfect for entertaining or creating distinct spaces for relaxation and gathering. A cozy fireplace adds warmth and ambiance, while the kitchen window frames a beautiful view of Mt. Emily.Sitting on two tax lots, the property includes a detached garage, a shop, multiple sheds, and plenty of off-street parking. The covered back patio provides a peaceful place to unwind or host summer get-togethers.In addition to its practical amenities and picturesque touches, the property is zoned R-2, allowing for duplexes and providing exciting development potential. Whether you’re looking for a comfortable home, an investment opportunity, or both, this property delivers a unique combination of comfort, function, and possibility.
On the South side of Cove Ave
Dwelling Type: Residential
Subdivision: N/A
Year Built: 1940, County: US
On the South side of Cove Ave
Listing is courtesy of Eagle Cap Realty, Inc