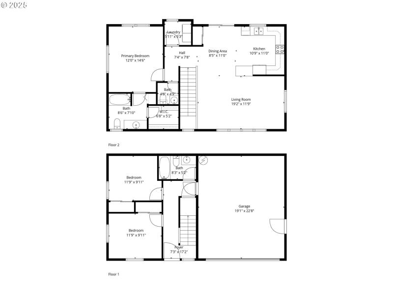
Tucked into the quiet hills of the Green District's Umpqua View neighborhood, this well-kept home checks every box. With 3 bedrooms, 2.5 baths, and 1,447 square feet, a large fenced yard, and RV parking, you'll have a hard time finding a home that competes! You'll notice the curb appeal right away, with a tidy exterior, level front yard, and room on the driveway for your RV or boat—a unique feature that makes this home a standout. A large shed adds extra storage for tools or toys, and the fenced backyard is a private retreat with cherry trees, a garden area, and a spacious deck complete with a gazebo for shade and summer BBQs. Inside, the layout is great for everyday living. Upstairs, you’ll find vaulted ceilings that open up the main living area, a kitchen with stainless steel appliances (including an induction stove), and a slider leading right out to that backyard deck. The primary suite is also upstairs and includes a walk-in closet and a full bath, while a half bath and laundry room make life easy on the same level. Downstairs are two additional bedrooms and a full bath, perfect for guests, family, or a quiet workspace. Extras like the fully hardwired security system, in-ground sprinklers, and insulated garage door show the kind of thoughtful upkeep and upgrades you don’t always see. From your living room, enjoy views of the valley—and when it’s time to head out, you’re just minutes from the Happy Valley boat ramp. A rare combination of views, usability, and low-maintenance living in a neighborhood where level lots and RV parking are few and far between. Schedule your private tour today!
I-5 Exit 119, R on Carnes, L on Austin, L on Rolling Hills, R on Silverado, L on Umpqua View
Dwelling Type: Residential
Subdivision: N/A
Year Built: 2004, County: US
I-5 Exit 119, R on Carnes, L on Austin, L on Rolling Hills, R on Silverado, L on Umpqua View
Listing is courtesy of Different Better Real Estate