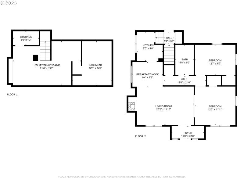
Welcome to a delightful cottage-style home that blends charm with functionality. Located in a vibrant neighborhood, it's ideal for both residential and commercial use. Live in the house & use the Quonset hut as your office/shop. Or, with the proper permitting, it could be an ADU. Please check with the City of Ontario for details. The home features inviting landscaping & a private backyard oasis with fruit trees. Gardeners will love the greenhouse and raised garden beds. With commercial zoning, this property is perfect for a small home-based business. Inside, the spacious living room feels warm and inviting. It has two bedrooms, one of which can easily be a home office, accessible from both the living room and hallway. Downstairs, the space offers extra storage and a flexible room, media room, or additional storage. This charming home offers residential comfort and commercial potential, making it ideal for gardening enthusiasts, entrepreneurs, or those seeking a tranquil backyard setting. Make it your own!
SE 5th Ave & SE 2nd St
Dwelling Type: Residential
Subdivision: N/A
Year Built: 1930, County: US
SE 5th Ave & SE 2nd St
Listing is courtesy of Coldwell Banker Classic Properties Inc