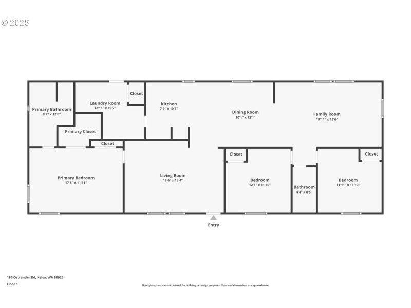
Step into the perfect blend of peace, privacy, and modern living—welcome to 196 Ostrander Rd, a beautifully updated home on 2 flat, usable acres just minutes from I-5 and downtown Kelso. Immaculately renovated and move-in ready, this property offers the space, comfort, and versatility you’ve been looking for.This 3-bedroom, 2-bath home has been completely transformed—featuring a brand-new kitchen with sleek cabinetry, new countertops, and updated appliances, along with fully remodeled bathrooms that bring a fresh, contemporary feel. Brand-new floors throughout, fresh paint inside, and a new roof give the entire home a bright, clean look that feels brand new.Natural light floods the interior, creating an airy, open atmosphere that flows effortlessly between living areas. The large front porch invites you to unwind with morning coffee or evening sunsets while overlooking your private, fenced property. The spacious 2-acre lot is completely usable—perfect for future additions like a shop, barn, or garden oasis.Down below, an unfinished crawl space offers an incredible opportunity for extra storage or even a future workshop area. With a combination of privacy and proximity, you’re just a few minutes from local schools, parks, and shopping while still enjoying the serenity of rural living.Every detail has been thoughtfully refreshed—from the new electrical panel and water heater to updated fixtures and finishes throughout—ensuring peace of mind for years to come.Boasting an unbeatable combination of comfort, charm, and value, 196 Ostrander Rd is the perfect place to call home. Don’t miss your chance to own this private, move-in-ready retreat—come experience it today.
Pleasant Hill Rd
Dwelling Type: Residential
Subdivision: N/A
Year Built: 1996, County: US
Pleasant Hill Rd
Listing is courtesy of Parker Brennan Real Estate