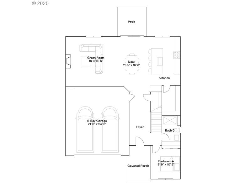
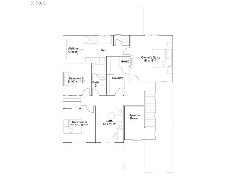
This new construction two-story Larview plan in Parkview Terrace features a main-level bedroom and full bath off the foyer, perfect for guests or a home office. At the back of the home, the kitchen, dining area, and great room connect in an open layout with direct access to a back patio and fully fenced, landscaped yard. Upstairs, a central loft provides extra living space near three additional bedrooms, including a primary suite with private bath and walk-in closet. Interior highlights include quartz countertops, shaker-style cabinets, LVP flooring, two-tone paint, landscaping, and fencing. Just 35 minutes from Portland and close to McMenamins Grand Lodge, residents enjoy dining, entertainment, and Thatcher City Park with walking trails and a dog park. This home also includes central air conditioning, a refrigerator, washer and dryer, and blinds—all at no extra cost! Located on homesite 146, this home is move in ready. Rendering is artist conception only. Photos are of a similar home, features and finishes will vary.
David Hill Rd to Thatcher Rd to Glade to Butte Dr. Check in at the Welcome Home Ctr at Glade & Butte
Dwelling Type: Residential
Subdivision: PARKVIEW TERRACE
Year Built: 2025, County: US
David Hill Rd to Thatcher Rd to Glade to Butte Dr. Check in at the Welcome Home Ctr at Glade & Butte
Listing is courtesy of Lennar Sales Corp