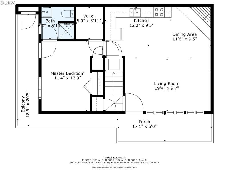
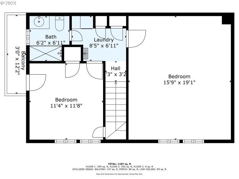
Discover the perfect blend of comfort, adventure, and investment potential in this charming Government Camp cabin! This spacious 3-bedroom, 2-bathroom cabin can accommodate up to 10 guests, making it ideal for family gatherings, friend getaways, or as an attractive investment property. With sought-after proximity to year-round outdoor activities, it’s just steps from hiking and biking trails, skiing, snowshoeing, lakes, and so much more.Upon entering, you’re welcomed by open beams and a cozy yet spacious atmosphere that’s thoughtfully designed for relaxation and entertaining. The inviting living area, centered around a warm fireplace, is perfect for cozy evenings in after a day of outdoor fun. For larger groups, a generous bunk room offers plenty of space for everyone to spread out, making this a fantastic retreat for multi-generational families or groups of friends.The well-equipped kitchen features modern appliances and everything you need to prepare homemade meals with ease. Whether it’s a winter wonderland retreat or a summer mountain escape, this cabin offers all the conveniences of home and then some.Nestled in a prime location in Government Camp, this cabin is a tranquil retreat while keeping you close to the town’s quaint eateries, entertainment, and family-friendly activities. Whether you're looking for a peaceful retreat, a base for endless outdoor adventures, or an investment opportunity with fantastic rental potential, this cabin is the perfect choice. Don’t miss out on this rare chance to own a piece of mountain paradise—schedule your viewing today and make your mountain escape a reality! This Government Camp property has no rental restrictions or rental cap.
Hwy 26 to Government Camp Loop to property. Main entry stairs, immediate right then down to end unit
Dwelling Type: Residential
Subdivision: Edelweiss
Year Built: 1972, County: US
Hwy 26 to Government Camp Loop to property. Main entry stairs, immediate right then down to end unit
Listing is courtesy of Windermere Realty Trust