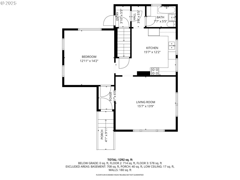
Just four blocks from downtown Astoria and three blocks from the Columbia River, this striking black Victorian duplex captures attention and imagination alike. With one unit upstairs and another downstairs, there is versatility for house hacking, rental income, or a conversion back to a 3 bedroom, 2 bath single family home. The bold exterior and architectural details evoke the charm that Astoria is famous for. Each unit features original character with tall ceilings and vintage woodwork. The upstairs apartment has beautiful original wood floors and Victorian style window bump out. This home is move in ready, with fresh paint, new carpet, electrical improvements and updated windows. A fenced yard provides privacy and room to enjoy the outdoors, while the unbeatable location puts shopping, dining, and waterfront paths just steps away.
Property is located on the east side of 4th between Commercial Street and Bond Street.
Dwelling Type: MultiFamily
Subdivision: N/A
Year Built: 1900, County: US
Property is located on the east side of 4th between Commercial Street and Bond Street.
Listing is courtesy of SALTAIRE Coastal Homes
Sign in to your account to continue