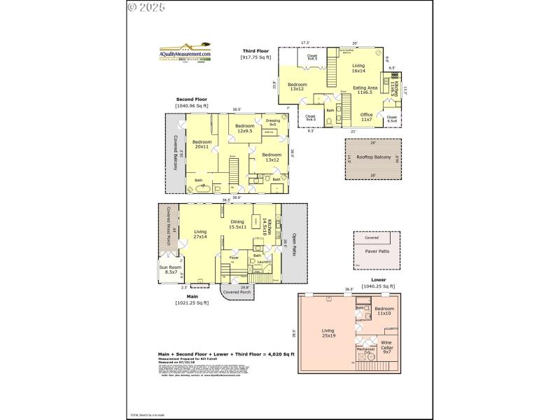
This is a really special property, rich in history and currently  the last permitted Bed and Breakfasts in Portland. The Fulton House. There are many opportunities as the home has four suites plus one more bedroom for a total of five. There are also five full bathrooms. The top floor bedroom has a kitchen and access to the roof top deck with mountain and territorial views. The lot is a corner so the property could be converted to a duplex as there are entries from both streets. The lot could also be divided as zoning would allow another home. Another idea would be add a garage with an ADU above, or middle housing, just so many options. As it is now it would be a terrific family home. There is a family room on the lower level with one bedroom, three of the bedrooms are on the second floor and the remaining bedroom is on the third floor. Beautiful stained glass and two covered decks in addition to the rooftop. Lovely fenced yard with another patio and water feature. Just a short distance from Zupans and other restaurants and shops. It is a must see.  Open House Sunday 10/19 1-3pm 
 Corner of S Texas and S Virginia off Macadam 
 
                                                        Dwelling Type: Land 
                            Subdivision: JOHN'S LANDING&FULTON PARK 
                            Year Built: N/A, County: US 
                            Corner of S Texas and S Virginia off Macadam
                        
Listing is courtesy of Windermere Realty Trust