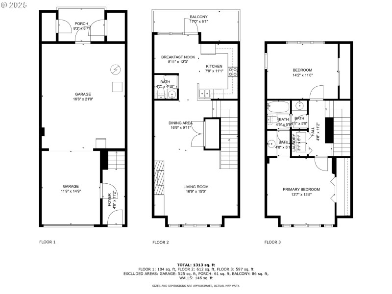
Directly across from Multnomah Art Center. 7848 is on the north side, second to last townhouse. Live in Multnomah Village known as the "village in the heart of Portland". MV delivers small town charm just mere minutes from the city center. This sweet SW Portland suburb is lined with locally owned businesses including cafes, galleries & shops. Pastries at Grand Central Bakery, Fat City Cafe, Marco's, Lucky Lab, Thinker Toys and many galleries. The cozy, comfortable townhouse has LVP flooring on main level, gas fireplace, built-ins, high ceilings. Kitchen has stainless appliances and a small dining area. Balcony off kitchen. Upstairs features 2 bedrooms, laundry area with washer/dryer included. Bedrooms have built in cabinets, ceiling fan and adjoining bathroom. Enjoy the one car garage plus a carport, extra storage. Low HOA dues of $385/mo covers water, sewer, insurance and exterior maintenance. Units have new roofs. And a home energy score of 9! Walkability score 88. Come see for yourself.
north of Multnomah Bkvd; South of Capitol Hwy - across street from Multnomah Arts Center
Dwelling Type: Residential
Subdivision: N/A
Year Built: 2003, County: US
north of Multnomah Bkvd; South of Capitol Hwy - across street from Multnomah Arts Center
Listing is courtesy of MORE Realty