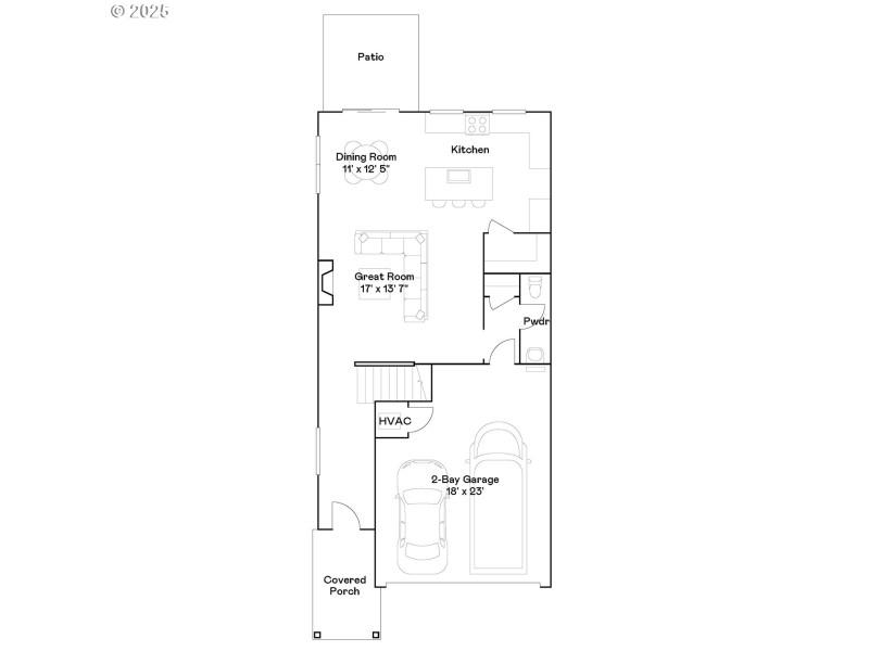
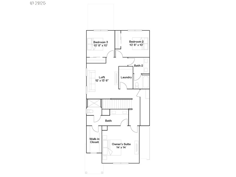
This new construction townhome is located in Autumn Sunrise, a community with a basketball court, playground, and picnic space. The Stella plan features a two-story layout with a main floor that brings together the great room, kitchen, and dining area, extending out to the patio. A fireplace creates a cozy focal point, while upstairs a versatile loft is surrounded by three bedrooms, including the primary suite with a connected bath featuring a double vanity and walk-in closet. Interior highlights include quartz countertops, shaker-style cabinets, LVP flooring in the kitchen and entryway, LVT flooring in the baths, two-tone interior paint, fencing, and front yard landscaping. This home also includes central air conditioning, a refrigerator, washer and dryer, and blinds—all at no extra cost! Located on homesite 248, this home is expected to be complete in March 2026. Rendering is artist conception only. Photos are of a similar home, features and finishes will vary.
Elligsen Rd to Boones Ferry Rd, R on SW Norwood Rd
Dwelling Type: Residential
Subdivision: N/A
Year Built: 2026, County: US
Elligsen Rd to Boones Ferry Rd, R on SW Norwood Rd
Listing is courtesy of Lennar Sales Corp