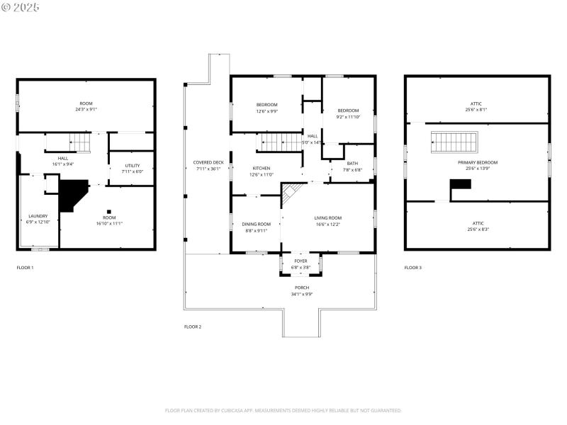
Discover country living just minutes from town on this beautiful 9.5-acre property. The adorable renovated 3-bedroom, 1-bath home blends classic charm with modern updates. Enjoy gleaming hardwood floors, a bright and open living area, and a spacious family and bonus room offering flexible living options on the lower level.The primary bedroom features vaulted ceilings, creating an airy retreat filled with natural light. Step outside to the covered deck—perfect for relaxing or entertaining while taking in the peaceful surroundings. With room to roam and potential for hobbies, gardening, or small livestock, this property offers endless possibilities.Conveniently located near Sam Barlow High School, this rare acreage combines comfort, convenience, and space to live your country dream. Buyer to do due diligence regarding possible second building site.
Lusted Road East of Barlow High School
Dwelling Type: Residential
Subdivision: N/A
Year Built: 1934, County: US
Lusted Road East of Barlow High School
Listing is courtesy of Cochran Property Group Inc.