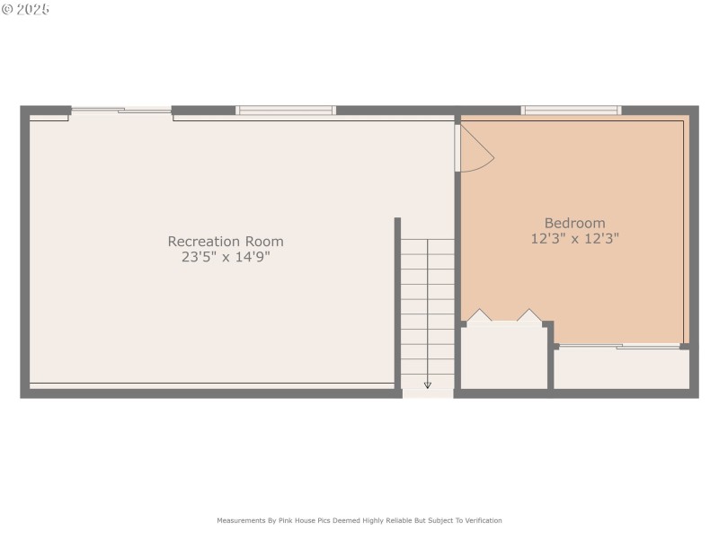
Bring your creativity and make this 4-bedroom, 2-bath gem truly shine! Thoughtfully maintained with solid bones and a smart, functional floor plan, this home is the perfect canvas for your dream remodel.The main level offers easy, comfortable living with three bedrooms and both bathrooms conveniently on one floor. Downstairs, you’ll find a generous family room — ideal for a media room, game space, home office, or studio — plus the fourth bedroom for added flexibility.Step outside to a backyard built for year-round enjoyment with lush artificial turf, room to entertain, and space to relax. Major updates have already been taken care of, including a new roof, so you can focus on making the interior your own.With a recent appraisal of $650K before the new roof, this is an incredible opportunity to add value and create the home you’ve been envisioning — in a location you’ll love.
Capitol Hwy to Alfred to 41st
Dwelling Type: Residential
Subdivision: N/A
Year Built: 1979, County: US
Capitol Hwy to Alfred to 41st
Listing is courtesy of Keller Williams Sunset Corridor