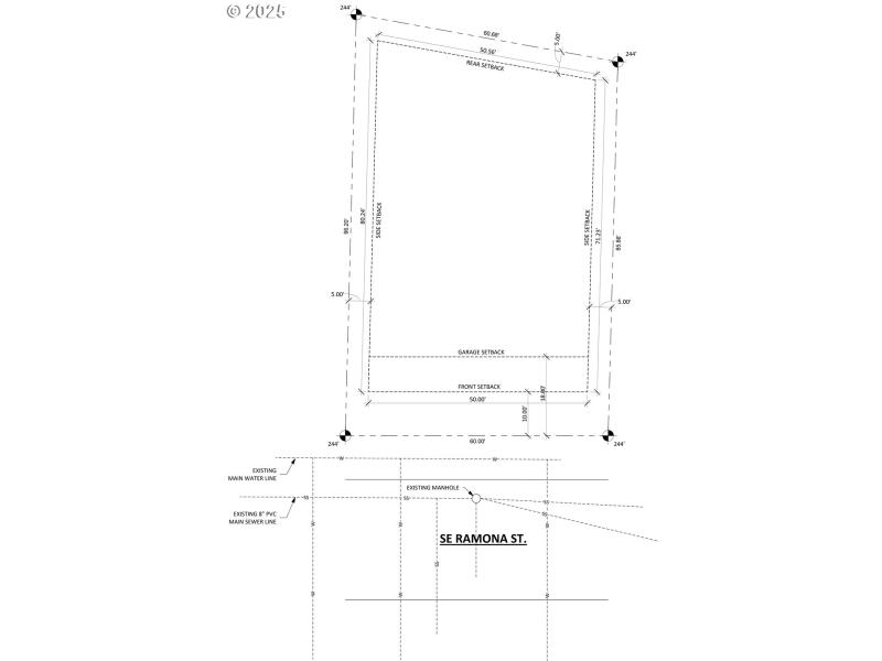
Raw vacant land. Flat buildable lot in SE Portland, ideally located adjacent to the Springwater Corridor walking trail. This vacant parcel is zoned R5 with versatile residential development options—single-family, multifamily, or more (buyer to verify). A site plan is included in the images, as well as a few visual ideas of buildings that would fit on site. Don’t miss this opportunity in a rapidly developing area. 
 N on 136th, E on Ramona, Property to the N 
 
                                                        Dwelling Type: Land 
                            Subdivision: N/A 
                            Year Built: N/A, County: US 
                            N on 136th, E on Ramona, Property to the N
                        
Listing is courtesy of Real Broker