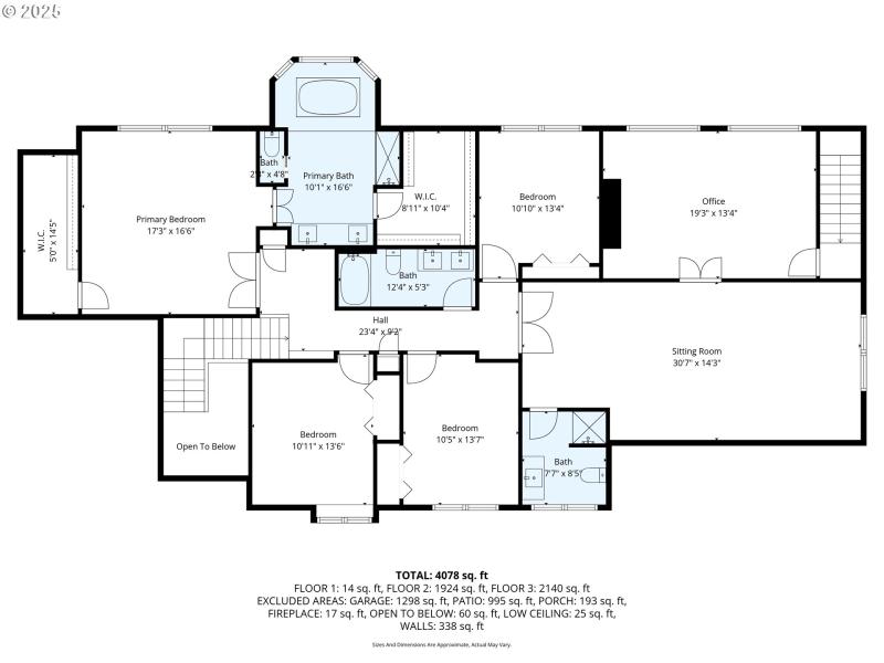
Set on a private half-acre at the end of a quiet street, this fully remodeled 4-bedroom, 3.5-bath home blends design, function, and flexibility in one of Portland’s most desirable enclaves. Built in 2000 and thoughtfully upgraded throughout, it offers an ideal balance of modern convenience and craftsmanship—just minutes from Forest Park, downtown Portland, The Pearl, Nike, and Intel.The main floor features a custom kitchen with Wolf appliances, quartzite counters, and designer cabinetry that opens to a spacious family room and dining area. Large windows and upgraded patio covers connect seamlessly to the landscaped outdoor spaces and epoxy-coated patio, creating an easy indoor-outdoor flow.A new elevator installed in 2024 provides access from the main floor to the upper-level primary suite, where you’ll find a spa-inspired bath with soaking tub, walk-in shower, and generous walk-in closet. Additional rooms include a main-floor den and two large upper floor bonus rooms—one with an ensuite bath and another ideal for a gym, studio, or home office. Recent system upgrades include a new furnace and AC, tankless water heater, and a 20kVA whole-house generator with automatic transfer. A enormous five-car garage with high-ceilings and a dedicated workshop offers exceptional storage and functionality for multiple cars, RV or workshop tables.
Skyline to Hawkins or Miller to Hawkins to Blue Pointe Lane
Dwelling Type: Residential
Subdivision: Blue Pointe Lane
Year Built: 2000, County: US
Skyline to Hawkins or Miller to Hawkins to Blue Pointe Lane
Listing is courtesy of The Agency Portland