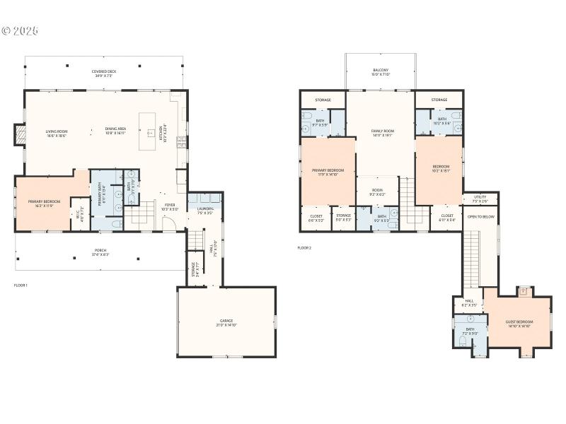
New Construction & NO wait list for Nightly Vacation Rentals!! Discover coastal living at its finest in this stunning four-bedroom, five-and-a-half-bathroom home that perfectly balances luxury and comfort. With 2,600 square feet of thoughtfully designed space, this property offers an ideal retreat for both relaxation and entertaining. The heart of the home features a gourmet kitchen equipped with premium Thermador appliances, elegant quartz countertops, and a spacious island perfect for morning coffee or evening gatherings. Custom backsplash tile adds personality, while the open layout flows seamlessly into the living room with a sliding glass door out to the ocean view covered porch. 9' ceilings throughout enhance the sense of space, complemented by durable luxury vinyl plank flooring that combines stylewith practicality. The home maintain comfort year-round with central air conditioning, while the gas fireplace provides a cozy ambiance during cooler evenings. Step outside to covered porches that extend your living space or enjoy the ocean view balcony where you can savor the beautiful Pacific Ocean evening sunsets. The elevated perspective offers breathtaking coastal vistas that never grow old.This property presents an exceptional investment opportunity as a nightly vacation rental with no waiting list, offering immediate income potential. The home's prime location puts you steps from Safeway for convenient shopping, close to Chinook Winds Casino, and easy beach access for miles of sandy walk or exploring in the Tide pools. Whether you're seeking a primary residence, vacation getaway, or investment property, this coastal gem delivers on all fronts with its blend of luxury amenities, practical features, and unbeatable location near Oregon's beautiful coastline.
From Hwy 101 turn west on NW 40th. Entrance to The Sands subdivision will be on the right.
Dwelling Type: Residential
Subdivision: N/A
Year Built: 2025, County: US
From Hwy 101 turn west on NW 40th. Entrance to The Sands subdivision will be on the right.
Listing is courtesy of Realty One Group At The Beach
Sign in to your account to continue