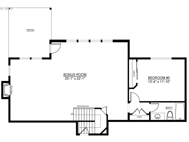
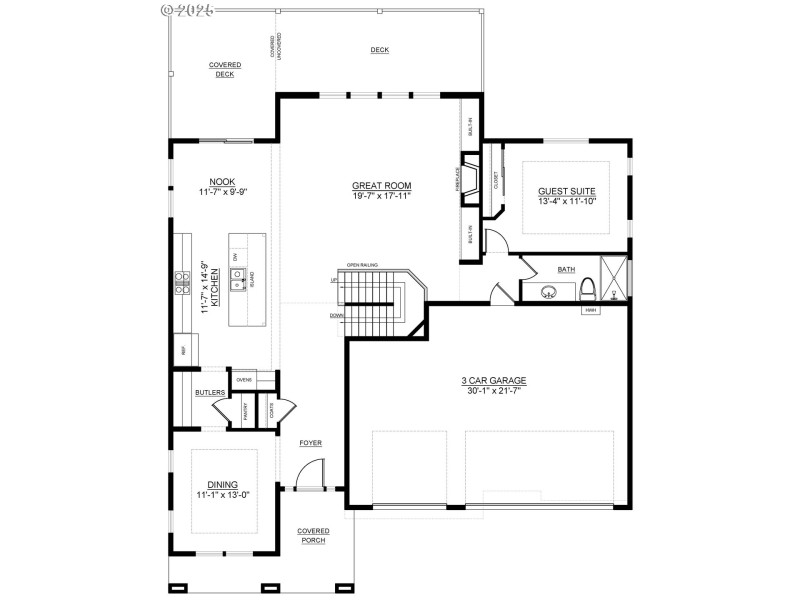
This Home has it all! Gorgeous Greenway with large yard, two story great room, Guest bedroom/bathroom suite on main, 3 car, separate living with bonus and additional guest suite, views, privacy... Come visit Noyes Development’s BRAND NEW 65-Home Community in Bethany. Floor plans range 2500-4,500 sf. Highlights include guest suites, 3-car garages, greenspace views, and daylight basements. Pictures are of a similar Noyes Home. This Fabulous Unique Floor plan is perfect for entertaining boasting two story great room, extensive wood floors, stunning tile face fireplace, gorgeous built ins, lots of windows! Stunning Gourmet Kitchen with large quartz slab Island, pantry, butlers pantry. Huge covered deck opening to Tree's & Greenspace. Guest bedroom/den on main with full bath, mini suite upstairs. Downstairs offers separate living and guest room w/bath suite. As a trusted local company, Noyes delivers high-performance homes that are Earth Advantage Platinum certified, Zero-Energy Ready, and exceed ENERGY STAR standards, all complemented by luxurious amenities and finishes. Noyes offers early buyers the exciting opportunity to customize & personalize their home. Collaborate with the talented interior design team to select finishes through a seamless, guided process at their in-house design center. Noyes Development is a 17-time Earth Advantage Award winner, HBA Builder of the Year, Energy Star Market Leader, 6-time Oregon Home Magazine winner, Department of Energy ZER Award Winner, and recipient of Earth Advantage’s Project of the Year.
Bethany North, left (west) on West Union, left (south) on 174th, on your right
Dwelling Type: Residential
Subdivision: CREEKSIDE AT WESTVIEW
Year Built: 2025, County: US
Bethany North, left (west) on West Union, left (south) on 174th, on your right
Listing is courtesy of John L. Scott