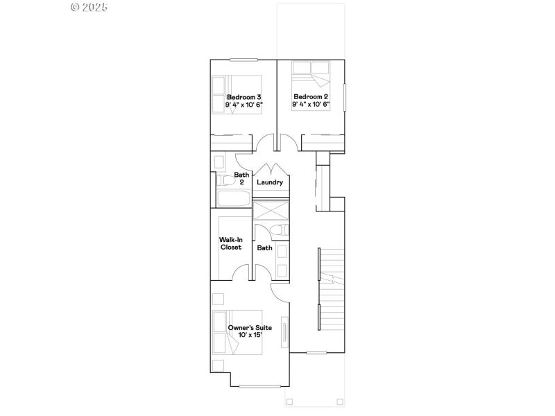
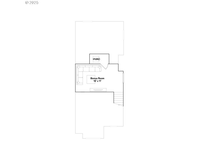
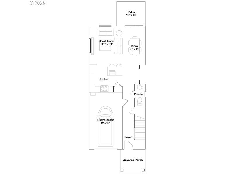
This new two-story pop-top loft home boasts a modern and low-maintenance layout. The first floor is host to an inviting open floorplan that combines the kitchen and Great Room, with a nearby patio offering convenient outdoor access. Three bedrooms can be found on the second floor including the luxurious owner’s suite. A versatile loft makes up the third level providing a convenient shared living area that everyone can enjoy. Renderings and sample photos are artist conceptions only. Photos are of similar or model home so features and finishes will vary. Taxes not yet assessed. Home includes: air conditioning, blinds, refrigerator, washer, and dryer. Below-market rate incentives available when financing with preferred lender! Homesite # 30, Move-in Ready!
4074 SW McKinley, Gresham, OR 97080
Dwelling Type: Residential
Subdivision: N/A
Year Built: 2025, County: US
4074 SW McKinley, Gresham, OR 97080
Listing is courtesy of Lennar Sales Corp
Sign in to your account to continue