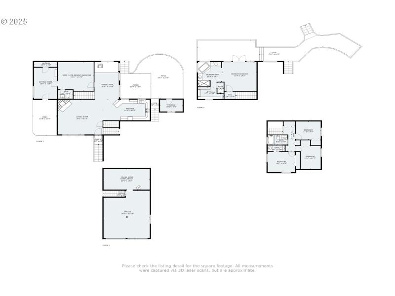
This charming, previously remodeled 3070 ft home in town is the perfect blend of beauty and convenience. With five bedrooms and four bathrooms (two full, two half), this property offers a great separation of space and endless possibilities for modern life.As you step inside, you're greeted by a spacious living room featuring a rock mantel and a pellet stove to keep you comfortable year-round. As you move through, your eyes are immediately drawn to the formal dining room that soars with natural light, thanks to a wall of windows. A certified wood stove with a beautiful live-edge wooden mantel creates a warm and cozy atmosphere, perfect for gathering on a crisp fall evening. Off to the side, the large galley kitchen has beautiful countertops, ample storage, and is the central hub to this spacious home; bringing everyone together. This home truly shines with its incredible multi-generational living options. The main floor boasts a huge primary suite with its own private entrance and a small, separate living area complete with stackable washer and dryer hookups; this space is ideal for in-laws, a student, or even a spacious home office. The second primary suite is a true retreat—large, light, and bright, with Vaulted Ceilings and French doors that open to a private corner of the deck, you'll never want to leave. Its luxurious en-suite bathroom features a huge walk-in closet and a beautifully tiled shower. The second level of the home houses three additional bedrooms, offering plenty of space for family or guests. A full bathroom with a tub and a half bathroom in the third bedroom provide added convenience. Downstairs, the two-car garage includes laundry hookups and ample storage space. Out back, you'll find a patio with a tool shed and a terraced deck, all nestled under a canopy of trees—a perfect spot for a cup of coffee or a summer barbecue. With RV/Boat parking, this home is ready for all Oregon has to give.
West on Main Street, Left on R street, to 947.
Dwelling Type: Residential
Subdivision: N/A
Year Built: 1977, County: US
West on Main Street, Left on R street, to 947.
Listing is courtesy of United Real Estate Properties