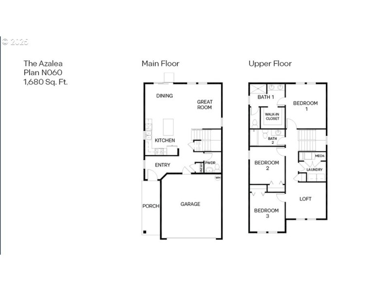
Get ready to elevate your lifestyle and experience the best of both worlds at Davis Estates in Forest Grove by DR Horton. You can enjoy and unwind in the tranquility of the idyllic peaceful country charm hometown living! Surrounded by picturesque and scenic views settings, and away from the hustle and bustle. Just minutes away from HWY 26/Sunset HWY and major employers such as Keizer Permanente, OHSU Hillsboro, Genentech, Qorvo, INTEL, NIKE, St. Vincent Hospital, Winco, Hillsboro Airport & many more! The 1,680 square foot signature series Azalea floor plan features 3 bedrooms, 2.5 bathrooms, with a lovely loft on the second floor that offers plenty of natural light. The open concept living space is spacious with tall ceilings and is ideal for hosting. The lavish kitchen has quartz countertops, an island, shaker cabinetry, microwave with vent hood, and stainless-steel appliances including a free-standing gas range/oven. The upstairs loft space offers a versatile area that can be used as an entertainment room or play area. The primary bedroom is spacious, it has a large walk-in closet, walk-in shower, and an en suite bathroom with a double vanity. Our Signature Series homes include the following features: blinds (windows locations vary per plan); front and rear irrigation system; backyard landscaping; air conditioning; fencing; and a garage door opener (varies per plan). Receive a closing cost credit with use of builder’s preferred lender, reach out for more details. Sales office hours are 10AM - 5:30PM Saturday to Wednesday. Be a part of this wonderful community at Davis Estates! Photos are representative of plan only and finishes may vary as built.
Check IN Model home: 3594 Main St. Forest Grove, Oregon 97116
Dwelling Type: Residential
Subdivision: DAVIS ESTATES
Year Built: 2025, County: US
Check IN Model home: 3594 Main St. Forest Grove, Oregon 97116
Listing is courtesy of D. R. Horton, Inc Portland