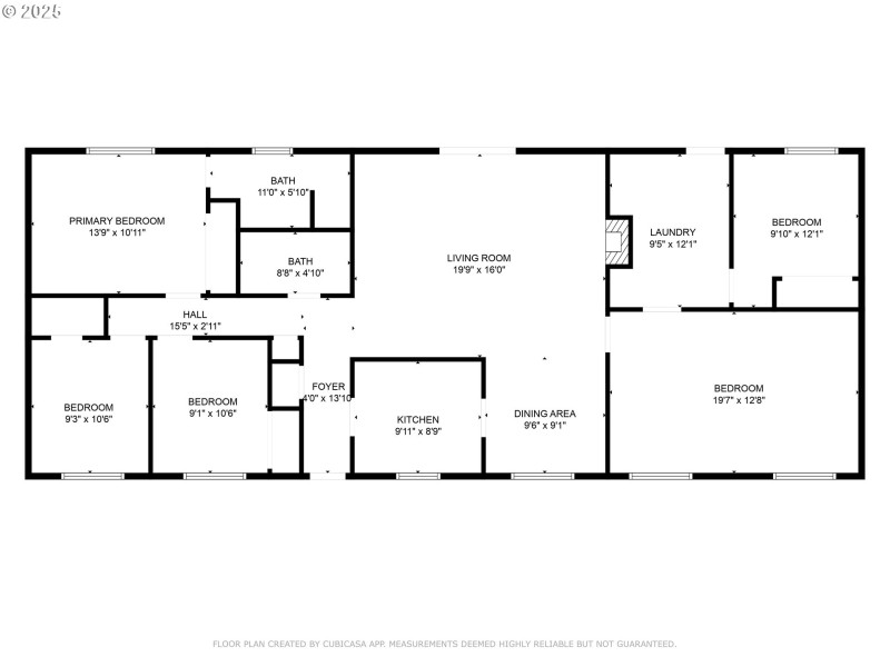
This charming one-level home offers a flexible layout and plenty of room to fit your lifestyle. With four bedrooms, two bathrooms, and a versatile bonus room, there’s space for everyone to work, play, and relax. The Primary bedroom features its own ensuite bathroom for added comfort, while the updated hall bath adds a fresh, modern touch. The kitchen is equipped with stainless steel appliances and flows seamlessly into the inviting dining area and living room, complete with a cozy fireplace insert, ceiling fan, and mini split HVAC system for year-round comfort. A dedicated laundry room adds everyday convenience. Enjoy the large, peaceful backyard with a covered deck for year-round use, a fully fenced yard for privacy, and a tool shed for extra storage. Additional parking is available for your RV, boat, or toys. Situated on a spacious quarter-acre lot, this home is just minutes from restaurants, shopping, and major commuting routes.
SR 500- N on Thurston Way- E on NE 58th St- N on NE 84th Ave.- E on NE 62nd St.
Dwelling Type: Residential
Subdivision: Meadowcrest
Year Built: 1975, County: US
SR 500- N on Thurston Way- E on NE 58th St- N on NE 84th Ave.- E on NE 62nd St.
Listing is courtesy of RE/MAX Equity Group