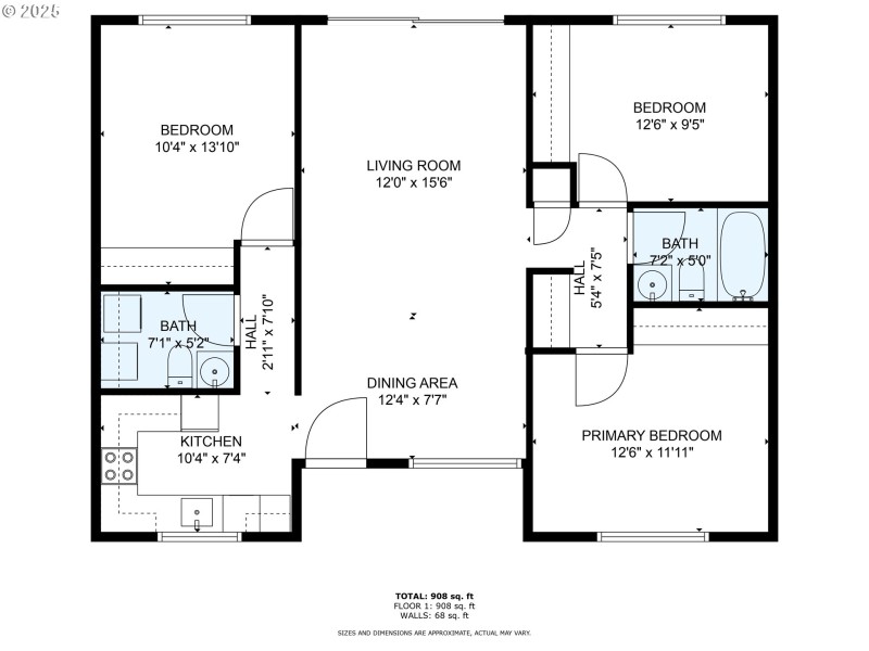
Move-in-ready and among the most updated duplexes in Gresham under $520K! 5 bed 2.5 bath close to amenities 1/2 mile from MHCC & full of 2025 updates. New roof (2023) and 2025 exterior refresh with select siding replacements and full paint. Left unit (2 bed 1 bath) fully updated in 2025 (Paint,Floor,Kitchen,Electrical,Appliances, Water Heater, & Includes W/D). Gas heat in both units! (Furnaces in attic). Right unit (3 bed 1.5 bath) occupied month-to-month. Both with garages, off & on street parking & fenced back yards with patio. Peace of mind with a solid property. 
 Division St 
 
                                                        Dwelling Type: MultiFamily 
                            Subdivision: N/A 
                            Year Built: 1978, County: US 
                            Division St
                        
Listing is courtesy of Balance Real Estate