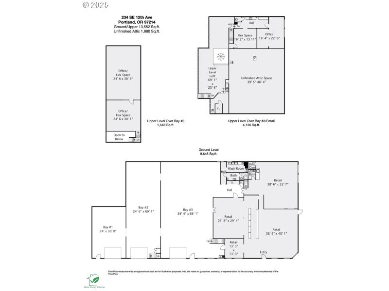
Your chance to purchase the first ever homebrew shop in America, serving wholesale clients since 1918 - F.H. Steinbart! Prime opportunity with 13,500+ sqft and $400,000+ inventory included in purchase price. Large warehouse space with retail/wholesale storefront, mezzanines, workshop areas, office, community/meeting room, hallway with kitchenette and unfinished attic space which is prime for a speakeasy conversion! This would be a great opportunity to create a retail and wholesale fusion to continue to serve wholesale clients while creating a dining space with the large garage doors for indoor/outdoor seating.
On SE 12th Ave between SE Pine St and SE Ash St
Dwelling Type: CommercialSale
Subdivision: N/A
Year Built: 1956, County: US
On SE 12th Ave between SE Pine St and SE Ash St
Listing is courtesy of John L. Scott Market Center
Sign in to your account to continue