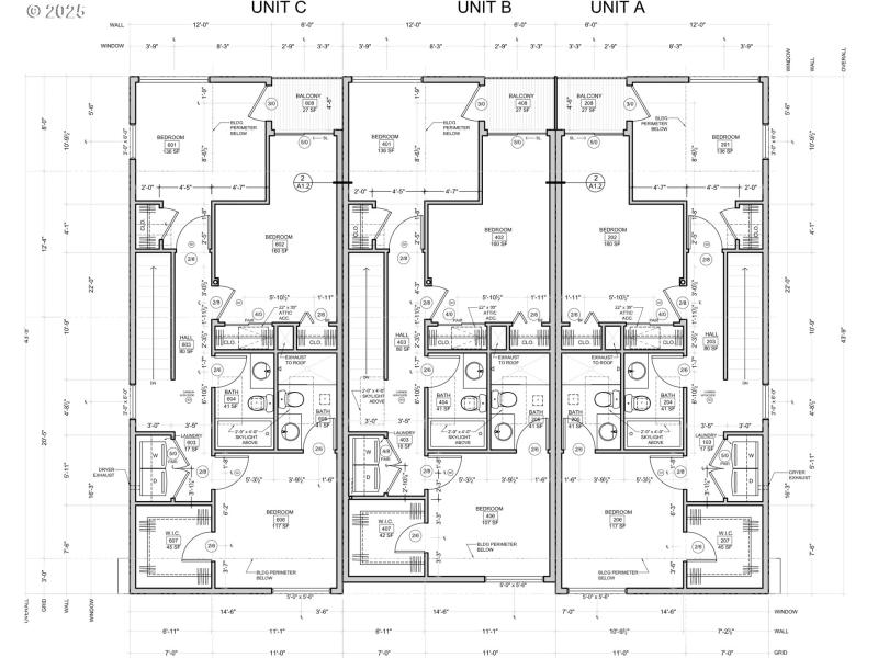
Rare pre-construction triplex investment opportunity in Milwaukie. This new construction project consists of three (3) well-designed units, each offering 3 bedrooms, 2 bathrooms, and a private garage. Built for long-term durability and low maintenance, the property is ideal for investors seeking stable cash flow and appreciation in a strong rental market. Modern layouts, efficient systems, and new construction minimize deferred maintenance and maximize tenant appeal. Excellent opportunity for buy-and-hold investors or 1031 exchange buyers. Convenient access to transit, downtown Milwaukie, schools, parks, and major commuter routes. Pricing, specifications, and timelines subject to change during construction.
SE 82nd Ave to SE King Rd
Dwelling Type: MultiFamily
Subdivision: N/A
Year Built: 2026, County: US
SE 82nd Ave to SE King Rd
Listing is courtesy of Keller Williams Premier Partners
Sign in to your account to continue