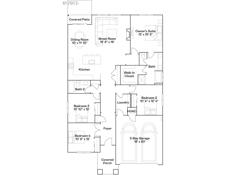
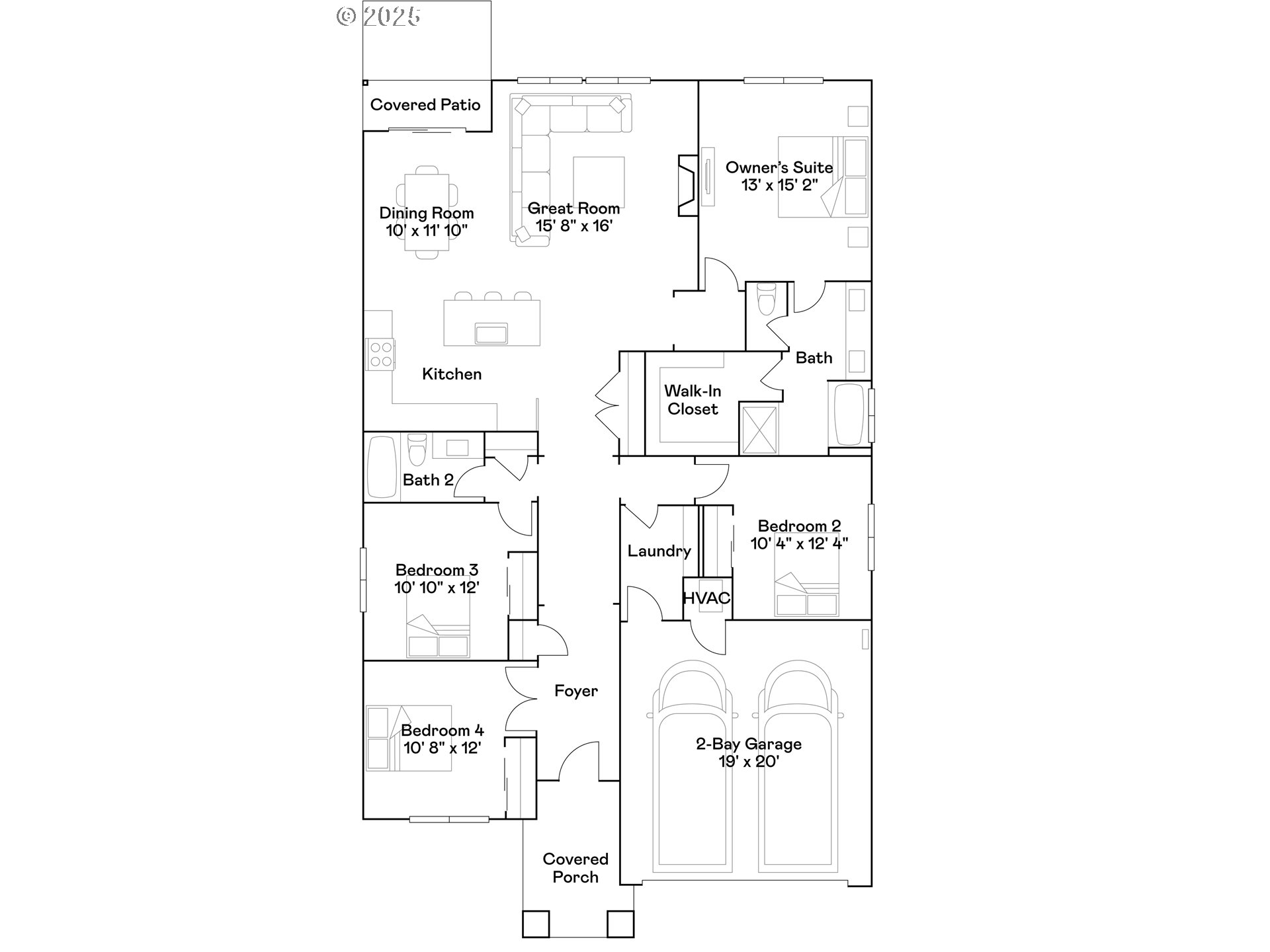
Welcome to Brandis Estates by Lennar. This new construction Endicott plan offers single-level living with a bright, open layout that connects the kitchen, great room, and dining area, extending to a partially covered patio for year-round enjoyment. The private primary suite is tucked at the back of the home and features an ensuite bathroom with a double vanity, a soaking tub and shower, and a walk-in closet. Three additional bedrooms are located near the entry, providing plenty of space for guests or a home office. Interior highlights include quartz countertops, Shaker-style cabinets, LVP (luxury vinyl plank) flooring in the kitchen and entry way, LVT (luxury vinyl tile) flooring in the bathrooms, two-tone interior paint, full landscaping, fencing, and a fireplace with a floating mantle. This home also comes complete with central air conditioning, a refrigerator, washer and dryer, and blinds—all at no extra cost. Located in Albany, this charming community in the heart of the Willamette Valley offers a welcoming small-town atmosphere with modern conveniences, walkable downtown streets, riverfront parks, and easy access to Corvallis and Salem. Rendering is artist conception only. Photos are of a similar home, features and finishes will vary. Estimated completion: January 2026. Homesite: 34.
Knox Butte Rd to Timber Ridge St, R on Hackamore Ct., Left on Withers Ct
Dwelling Type: Residential
Subdivision: N/A
Year Built: 2026, County: US
Knox Butte Rd to Timber Ridge St, R on Hackamore Ct., Left on Withers Ct
Listing is courtesy of Lennar Sales Corp