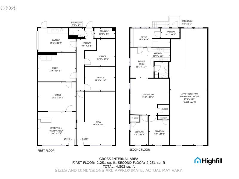
What if you could live where you work and enjoy the outdoor lifestyle Oakridge has to offer? This versatile mixed-use property sits right on Highway 58, featuring two ground-floor commercial spaces with great visibility and designated off-street parking, plus two fully rented apartments above. One commercial unit is currently leased, offering instant income potential. Whether you’re an investor or an owner-user dreaming of a live/work setup, this property offers flexibility, functionality, and a gateway to Oakridge’s vibrant mountain community. Should qualify for FHA financing with as little as 3.5% down, check with your favorite lender
On Hwy 58
Dwelling Type: CommercialSale
Subdivision: N/A
Year Built: 1947, County: US
On Hwy 58
Listing is courtesy of Works Real Estate
Sign in to your account to continue