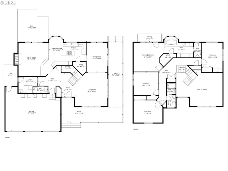
Well-maintained home on a 0.4-acre lot with numerous updates and great functionality throughout. Recent improvements include new Hardie plank siding (2023), a newer roof, furnace, and water heater; an encapsulated crawl space with sump pump; and bedroom carpet replaced within the last three years. Additional updates include a 2025 dishwasher, refreshed half bath on the main level, and new garage door openers. The garage is equipped with a 250-amp outlet—ideal for tools, hobbies, or electric vehicle charging. Inside, the main level features a large formal living room with vaulted ceilings, a formal dining room with hardwood floors, and an open kitchen with an adjoining nook and family room. Outdoor living shines with a large covered wraparound porch and a spacious deck off the family room, perfect for entertaining, complete with a gas hookup for a BBQ or outdoor fireplace/fire pit. The utility room includes a sink and built-in cabinetry for extra storage. Upstairs, the primary suite offers a private deck overlooking the backyard, a large bathroom with a soaking tub, walk-in shower, and generous walk-in closet. Four additional bedrooms are all well-sized and include ceiling fans. The hall bath features a walk-in tub for added accessibility. With thoughtful updates, a generous floor plan, and an expansive lot, this home combines comfort, space, and practicality in a desirable setting. [Home Energy Score = 3. HES Report at https://rpt.greenbuildingregistry.com/hes/OR10242356]
Beaverton Hillsdale HWY, S. on SW 65th Ave, E. on SW Boundary St., S. on SW 63rd to property.
Dwelling Type: Residential
Subdivision: N/A
Year Built: 1997, County: US
Beaverton Hillsdale HWY, S. on SW 65th Ave, E. on SW Boundary St., S. on SW 63rd to property.
Listing is courtesy of John L. Scott