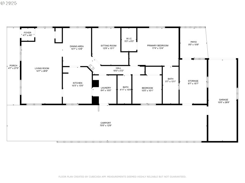
This meticulously maintained 2-bedroom, 2-bath home is located in a charming 55+ community right in town. The property features open concept living & Kitchen area. Den/office/flex space or possible 3rd bedroom. Beautiful master suite, (King size bedroom set availabele) NEW roof scheduled to go on June/July 2025. Low maintenace yard. Extra-large carport measuring 49’x12’x12’ along with a 9'x28’ garage equipped with a workbench. Additionally, it offers a 9’x15’ workshop with a workbench and a second carport or covered patio (9’x10’) at the back, all with durable concrete flooring. There’s plenty of space to store your vehicles and outdoor toys, protected from the elements. Conveniently situated just minutes from shopping, medical facilities, fishing, boating, and hiking opportunities, the home is close to the stunning Pacific Ocean and the Northwest Dunes. It’s also a short drive to popular attractions like elk viewing areas, the Umpqua and Smith Rivers, and Loon Lake—making it a dream retreat for fishing and crabbing enthusiasts. Only 30 minutes from Florence’s vibrant bayside, where you’ll find excellent restaurants and shops, this property is ideal for retirees looking to be part of a thriving coastal community. The sale is contingent upon park approval; please allow 7 days for this process. (Two small pets allowed)
101 to Winchester Ave, right on River Bend #82
Dwelling Type: Residential
Subdivision: N/A
Year Built: 1992, County: US
101 to Winchester Ave, right on River Bend #82
Listing is courtesy of Ocean Dunes Realty