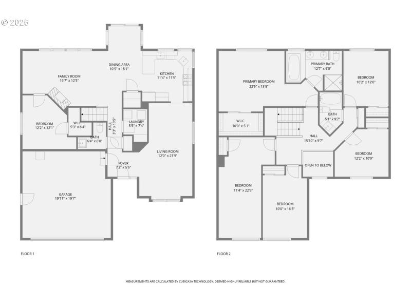
Vacant and Move-in ready! New roof installed just in October 2025 (warranty transferable)!! This beautiful, spacious two-story home offers 5 bedrooms, 2.5 bathrooms, and a layout designed for both comfort and functionality. The main level features a high-ceiling entryway, laminate flooring throughout except plush carpet in the family room for added warmth. There is a half bathroom, an entryway closet, and a laundry room with washer and dryer on the main floor. Entryway with ample light leads to a spacious living room, cozy family room, and a formal dining space. There is a den connected to the family room with a door that can be used as office or private space! The family room and den are anchored by a beautiful dual-sided gas fireplace, offering warmth and visual appeal from both sides. The heart of the home is the gourmet kitchen, featuring stainless steel appliances, free standing refrigerator, abundant cabinetry, granite countertops, a decorative tile backsplash, a pantry, and a charming nook for casual meals. From the living room, the open concept kitchen flows seamlessly to the family room. Upstairs, all five bedrooms are thoughtfully arranged off a landing space and walkway. There is a common closet upstairs in the hallway with a sliding door. The master suite has vaulted ceiling and offers a walk-in closet and a private bath with a soaking tub and walk-in shower. A second full bathroom serves the remaining bedrooms, each featuring wall-to-wall carpeting and ample closet space. The home also boasts central heating and air conditioning, an attached two car garage. From the dining area, step outside through the sliding door onto a covered deck that’s perfect for entertaining or relaxing throughout the year! The backyard is fully fenced, landscaped, private with seasonal territorial views! The home is conveniently located within nearby shopping centers and town centers - Portland, Murray Scholls, Progress Ridge, Washington Square, Summer Lake City Park.
Scholls Ferry Rd to Snowgoose Lane, right on SW Canvasback Way
Dwelling Type: Residential
Subdivision: Autumn Crest
Year Built: 1998, County: US
Scholls Ferry Rd to Snowgoose Lane, right on SW Canvasback Way
Listing is courtesy of Oregon First