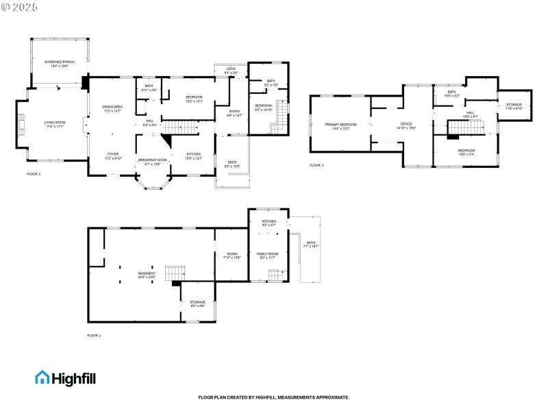
Beautiful farmhouse with an ADU, full of light and charm. The property includes a second legal address—871 Cheshire Ave—for the duplex/ADU. Tucked into a quiet, friendly neighborhood just one block from the Willamette river path and half a block from a sweet park, this home offers a rare blend of timeless character and everyday comfort. Owen Rose Garden is only a few blocks away, and downtown is close to hand.Surrounded by mature landscaping, the property features berries, figs, grapes, apple and cherry trees, with more than 50 rose bushes. A laurel hedge and block wall provide privacy, while a garden bounded by a greenhouse and unique storage space, adds both beauty and function. Outdoor spaces have been designed for entertaining, gardening, and quiet enjoyment.Inside, natural light emphasizes oak and fir floors, custom built-ins, and a cozy gas fireplace. The kitchen opens to a breakfast nook with built-in benches, and the spacious dining room easily hosts large gatherings. French doors connect the living room to a screened porch, and an enclosed porch provides pantry and storage space.Upstairs, the primary bedroom offers an airy retreat with skylights and an attached office or hobby room. A tiled walk-in shower creates the feel of a private spa. The 768 sqft daylight basement offers abundant outlets, a pantry/wine cellar, a workshop, and plenty of space for crafts and hobbies.The 320 sq. ft. ADU, with its own private entrance and no shared interior walls, lives larger than its footprint—ideal for guests, extended family, or rental income. Lovingly maintained for over four decades, the home blends history with thoughtful updates, and earthquake retrofitting.Surrounded by nature, yet close to everything, this urban retreat is ready for its next chapter.
W 11th, N on Washington St, W on W 1st, N on N Adams. Home on Right
Dwelling Type: MultiFamily
Subdivision: N/A
Year Built: 1928, County: US
W 11th, N on Washington St, W on W 1st, N on N Adams. Home on Right
Listing is courtesy of Hybrid Real Estate