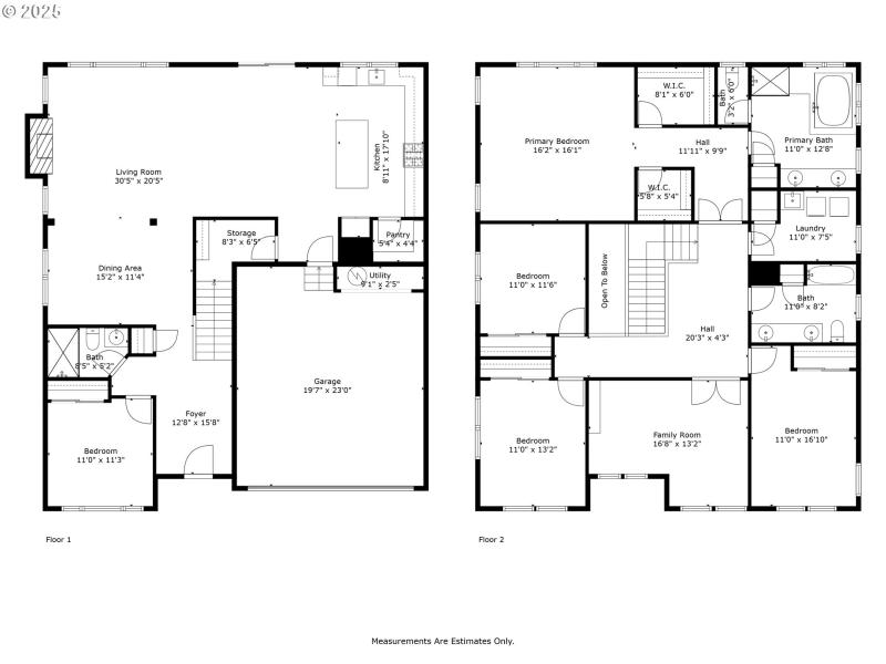
This newer construction 5 bedroom, 3 bathroom home is move-in ready and designed for modern, comfortable living. The main level features high ceilings and a spacious open layout, highlighted by a beautiful kitchen with quartz countertops, a large island, pantry and stainless steel appliances. A guest bedroom and full bathroom on the main level offer convenience for visitors or flexible use as an office. Upstairs, you’ll find four additional bedrooms, another full bathroom, a family/bonus room, and a large primary suite with two walk-in closets and a spa-like bathroom. The laundry room is conveniently located on this level, making daily life effortless. Step outside to a tranquil backyard, with covered patio perfect for relaxing or entertaining, and enjoy nearby trails, parks, and easy access to excellent schools, restaurants, shops, and more.
Bethany Blvd, Rt on NW Ridgeline St, Rt on NW Lauren Ave, Rt on NW Orchid St
Dwelling Type: Residential
Subdivision: N/A
Year Built: 2022, County: US
Bethany Blvd, Rt on NW Ridgeline St, Rt on NW Lauren Ave, Rt on NW Orchid St
Listing is courtesy of Berkshire Hathaway HomeServices NW Real Estate