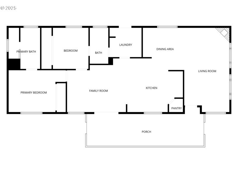
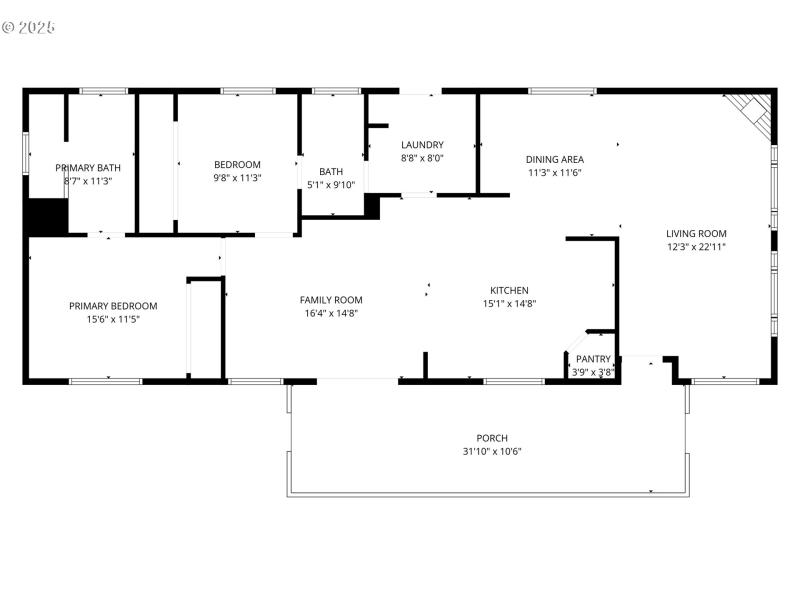
PRICED TO SELL!! OPEN SATURDAY 9AM-11AM!! Looking for affordable living, convenience, and quality? Look no further! Welcome to a spacious 2 bedroom, 2 bathroom double-wide manufactured home located in one of Newberg’s most affordable and well-managed 55+ communities. Recently refreshed with key maintenance updates, this home offers an open and expansive floorplan designed for comfort and accessibility. The inviting living room features a cozy gas fireplace, quality wall-to-wall carpet, and built-in accents that add both charm and functionality. The layout flows seamlessly into an expansive kitchen featuring a center island, built-in oven, cooktop, pantry, and durable laminate flooring, making meal prep and entertaining a breeze. Both bedrooms are generously sized with ensuite bathrooms, one featuring a relaxing soaking tub, and both a walk-in shower. Additional highlights include high quality double pane vinyl frame windows, a dedicated laundry room, and ample storage throughout. Sliding glass doors open to a covered deck overlooking a fenced backyard with fresh landscaping, perfect for outdoor enjoyment. A tool shed, storage shed, and covered carport with oversized parking provide extra utility and convenience. Park residents enjoy low monthly space rent that includes water, sewer, trash service, and access to a community meeting room. With its ideal blend of affordability, comfort, and amenities, this home is priced to sell and ready for its next owner to enjoy. Schedule your tour today!
99W onto N Springbrook Rd, right turn onto E 2nd St
Dwelling Type: Residential
Subdivision: N/A
Year Built: 1978, County: US
99W onto N Springbrook Rd, right turn onto E 2nd St
Listing is courtesy of Coldwell Banker Professional