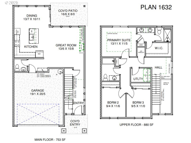
Come home to East Vancouver's newest master planned community of Harmony Heights!  This community boasts access to top-rated schools, well maintained parks and covered picnic shelter, perfect for family outings and community gatherings. Welcome to our 1632 plan where the grand entrance leads you into the spacious great room, with 9 ft ceilings and 8ft doors on the main floor.  Our spacious covered patio is right off the dedicated dining nook. Cozy up next to the fireplace in the living room which boasts huge windows letting in all the natural light!  Plenty of counterspace in the kitchen that also includes quartz countertop, full backsplash and spacious pantry.  Upstairs you will find 3 bedrooms, laundry room and secondary full bath.  Primary suite includes linen closet and double sinks standard.  Plenty of closet space too!  The Community HOA provides hassle-free living by covering front yard landscaping, allowing you to enjoy a beautifully maintained exterior without the upkeep.  Built by a highly respected builder with over 40 years of experience in the PNW, each home exemplifies quality craftsmanship and modern design.  With an estimated completion date of Nov 10th, you will be hosting Thanksgiving dinner in your new home! 
 NE 18th St & NE 179th Ave 
 
                                                        Dwelling Type: Residential 
                            Subdivision: Harmony Heights 
                            Year Built: 2025, County: US 
                            NE 18th St & NE 179th Ave
                        
Listing is courtesy of Holt Homes Realty, LLC