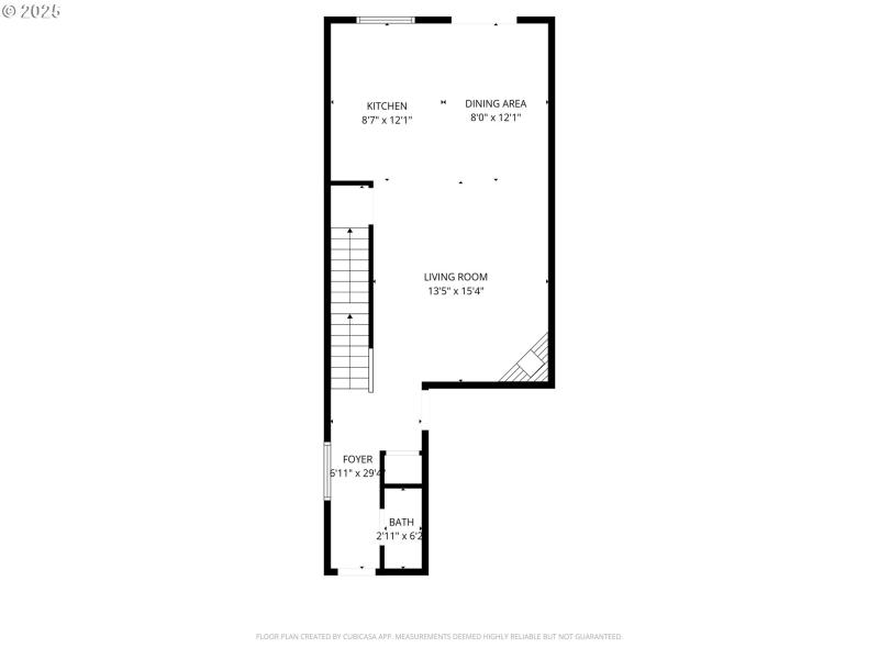
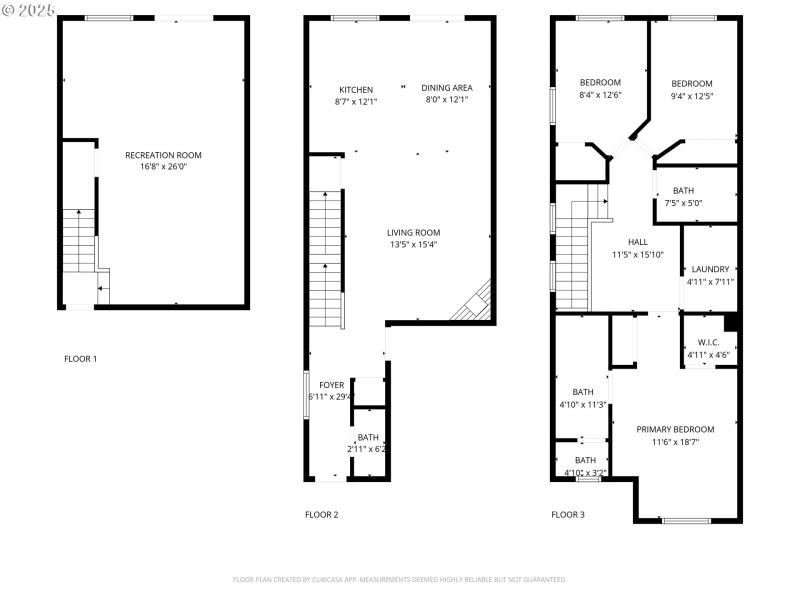
Here's the move in ready home you've been looking for! Beautiful end unit Happy Valley townhouse with freshly painted interior, new LVP floors, new carpet and all appliances included! Energy efficient tankless water heater and heat pumps keep you comfortable all year. Laundry on same level as bedrooms. Primary bedroom with ensuite bathroom, a regular closet and a large walk in closet makes it easy to find room for everything. Spacious daylight/walkout lower level makes a great family room, possible 4th bd or maybe even an ADU! Extra guest parking adjacent to property. Convenient location and walkable to New Seasons, Peet's coffee, multiple restaurants, the community park and transportation options. Check out this opportunity and make this home your own today! *All furnished photos are virtually staged*
at corner of Vivian Way and SE 156th Ave
Dwelling Type: Residential
Subdivision: Morningside
Year Built: 2016, County: US
at corner of Vivian Way and SE 156th Ave
Listing is courtesy of Summer Creek Realty