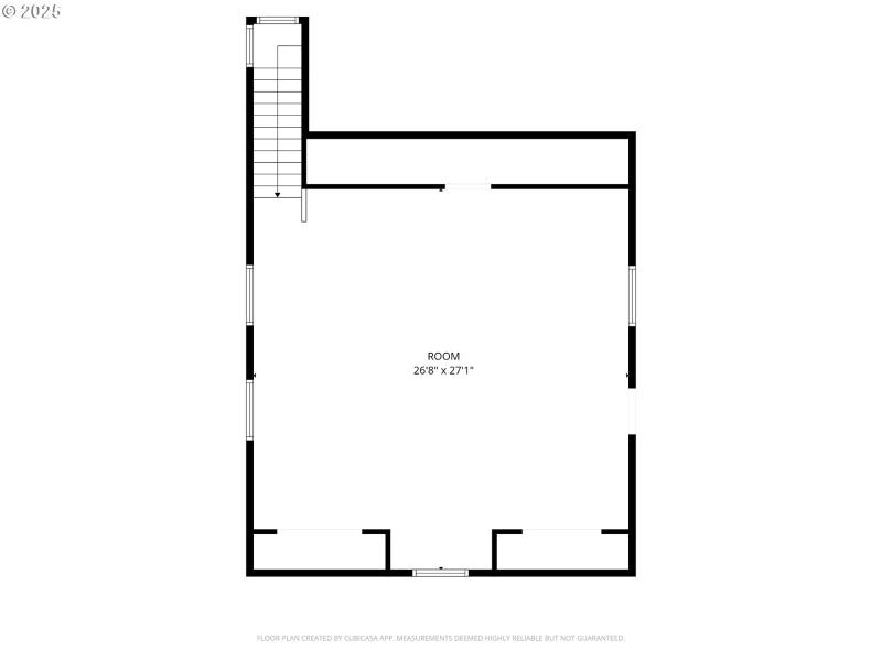
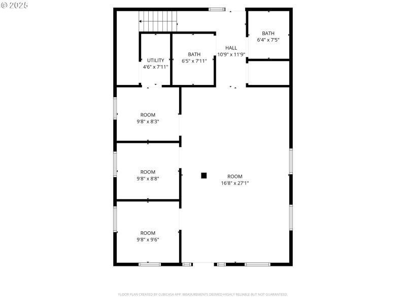
Beautiful downtown Coos Bay office building! Modern construction with quality materials and timeless finishes. Main level features open lobby, three private offices, two ADA restrooms, and bright natural light throughout. Upstairs offers a spacious open area with separate entrance—ideal for conference, studio, or potential live-work conversion (plumbing in place). Excellent visibility with large sign box, six on-site parking spaces, and easy access in a quiet yet high-traffic location. Professional landscaping and durable fiber-cement siding with cedar-shake accents. Perfect opportunity for a small business or professional practice ready to own their space. Seller is open to lease, lease-option, owner-carry. Let's talk and make your business dream a reality!
Hwy 101 (S Broadway) & Hall Ave, 1/2 Block to the West behind Pet Mart
Dwelling Type: CommercialSale
Subdivision: N/A
Year Built: 2005, County: US
Hwy 101 (S Broadway) & Hall Ave, 1/2 Block to the West behind Pet Mart
Listing is courtesy of Pacific Properties