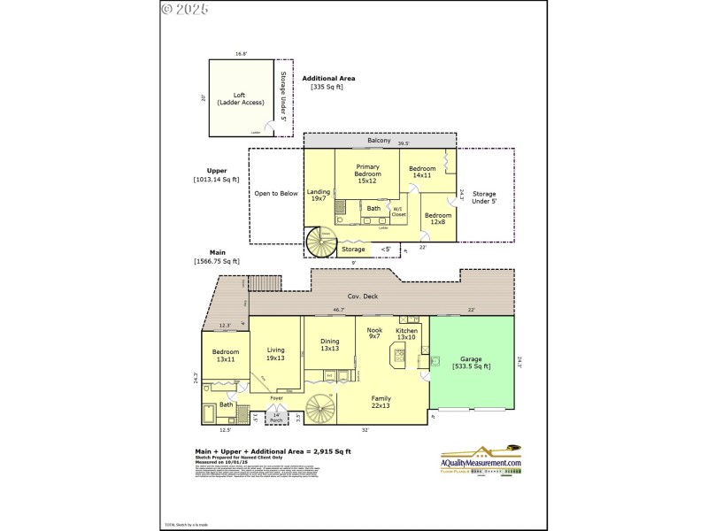
Privacy and sweeping territorial views define this beautiful contemporary-style home, ideally located near Cooks Butte Park trailway, Lakeridge High School, the new Lake Oswego Aquatic & Recreation Center, the Municipal Golf Course, and Luscher Farms. You are welcomed by a private, tranquil entrance that leads into a light-filled living room with walls of windows, a cozy fireplace, and an adjoining formal dining room. The updated kitchen features stainless steel appliances, solid-surface countertops, a casual dining nook, and opens to the family room for easy everyday living. The main floor offers a bedroom that could be used as the primary and a full bath, while the upper level includes three additional bedrooms, a full bath, and a versatile hall/loft area overlooking the living room. Outdoors, a spacious composite deck stretches across the back of the home, overlooking the fenced yard with mature landscaping and wide-open views—perfect for enjoying nature and stunning sunsets. Additional highlights include a two-car garage with storage, plus generous walk-in crawlspace and attic storage areas. This home exudes style.
Stafford or Westview to Overlook - South - to Hillside Dr.
Dwelling Type: Residential
Subdivision: N/A
Year Built: 1976, County: US
Stafford or Westview to Overlook - South - to Hillside Dr.
Listing is courtesy of Keller Williams Realty Portland Premiere