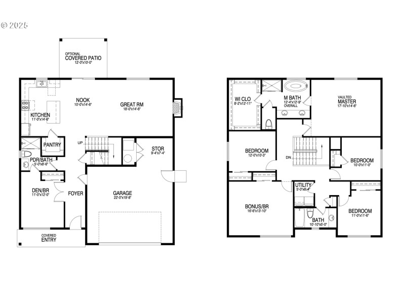
Welcome to Oak Ridge, an 18-lot project in McMinnville, built by Chad E. Davis Construction LLC. This Project is conveniently located off of Baker Creek Road, offering quick access to Highway 99 and historic Downtown Third Street. The "Waldport" plan features five bedrooms, three full bathrooms and a spacious bonus room (could be sixth room). The primary ensuite is located upstairs, along with three other bedrooms, and the bonus space. There is an ensuite bedroom and full bathroom on the main level. The kitchen will boast quartz countertops, gas appliances, a pantry, and a sizeable island. With quality finishes throughout, a gas fireplace, coffered ceilings, and a landscaped/fenced backyard, this home will be a welcome addition to McMinnville's growing community.
Located off Baker Creek Road, to Pinehurst Drive, to Tracy Street
Dwelling Type: Residential
Subdivision: OAK RIDGE MEADOWS
Year Built: 2025, County: US
Located off Baker Creek Road, to Pinehurst Drive, to Tracy Street
Listing is courtesy of Willcuts Company Real Estate