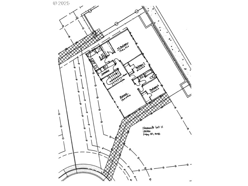
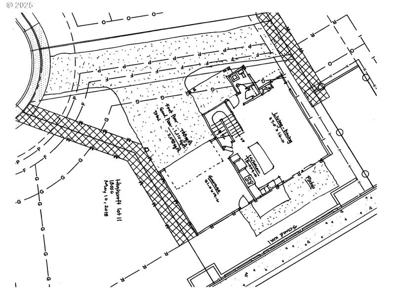
Proposed new construction on ready to build level lot in established Bethany neighborhood feeding to Jacob Wismer elementary, Stoller middle and Sunset high. Building plans completed for 2,131 SF house with bonus room and three bedrooms, including primary suite, all upstairs, open great room and 2 car garage on main level, while still leaving room for 14 feet deep back yard. Work with Makana Homes, an established builder who has built four homes in the neighborhood, or bring your own builder. Quiet neighborhood of two cul-de-sacs. All utilities available to lot line. Lot and construction financing available.
NW Laidlaw between Bethany Blvd and Kaiser: N on 149th Terrace, R on Highcroft Ct. On left.
Dwelling Type: Residential
Subdivision: Bethany
Year Built: 2026, County: US
NW Laidlaw between Bethany Blvd and Kaiser: N on 149th Terrace, R on Highcroft Ct. On left.
Listing is courtesy of Keller Williams Realty Professionals
Sign in to your account to continue