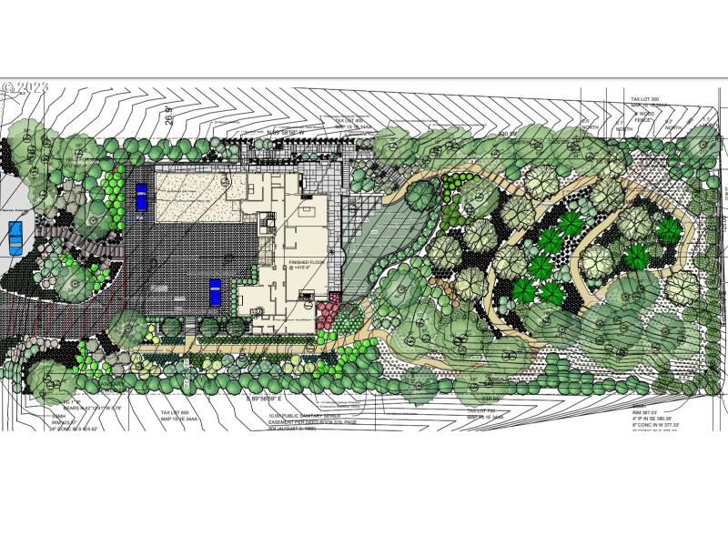
Mt Hood View potential on this private, Dunthorpe Lot, .95 Acres (41,250 sq ft). Situated in the coveted Riverdale School District, with it's award winning schools, it is located just minutes to downtown Portland & Lake Oswego. The lot comes with architectural, structural, and landscape design plans for a 6000 sq ft French Country custom home with 4 Bedrooms / 5 Baths including room by room interior design concepts as well as a 3 car 1100 sq ft garage with finished 370 sq ft attic above and 5 daylight dormers which could be modified as an ADU with its own exterior entrance. Includes geotechnical, storm water facility reports and arborist tree type and location plans. One of the last vacant lots in exclusive Dunthorpe. Possible lot division, Buyers to do due diligence with the city.
Palatine Hill Road to Collina
Dwelling Type: Land
Subdivision: N/A
Year Built: N/A, County: US
Palatine Hill Road to Collina
Listing is courtesy of John L. Scott Portland Central