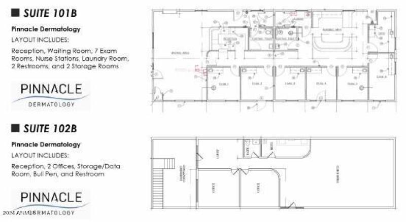
Great income producing property BELOW MARKET with a CAP Rate of 6.39% and a potential of 7.5% once the basement office is leased out. The basement office lends for affordability and unique work environment of 1,900 sq.ft. available at $14/sq.ft Strategically located across the street, just steps away from Gilbert. Excellent value Gilbert location at Mesa prices. Just west of Gilbert Road, near the US-60 freeway, making it easily accessible. Boarders the Town of Gilbert which is across the street. Seller will Carry $1 million if needed. Ideal for a medical practice or other professional services due to its established use and proximity to the Mesa and Gilbert communities. The Learning Center Tenant has 3 yrs left of a 5-yr lease and the Dermatology Tenant has 2 yrs left of 5 yr lease.
Dwelling Type: Comm/Industry Sale
Subdivision: N/A
Year Built: 1996, County: N/A
Listing is courtesy of DeLex Realty
Sign in to your account to continue