** NEW CONSTRUCTION. Nestled within the world's largest stand of Ponderosa Pines, The Highlands at Tovar Springs offers the perfect harmony of natural beauty and modern living. Situated in Flagstaff's stunning landscapes, this new community provides the tranquility of mountain living with the convenience of a vibrant, thriving town.
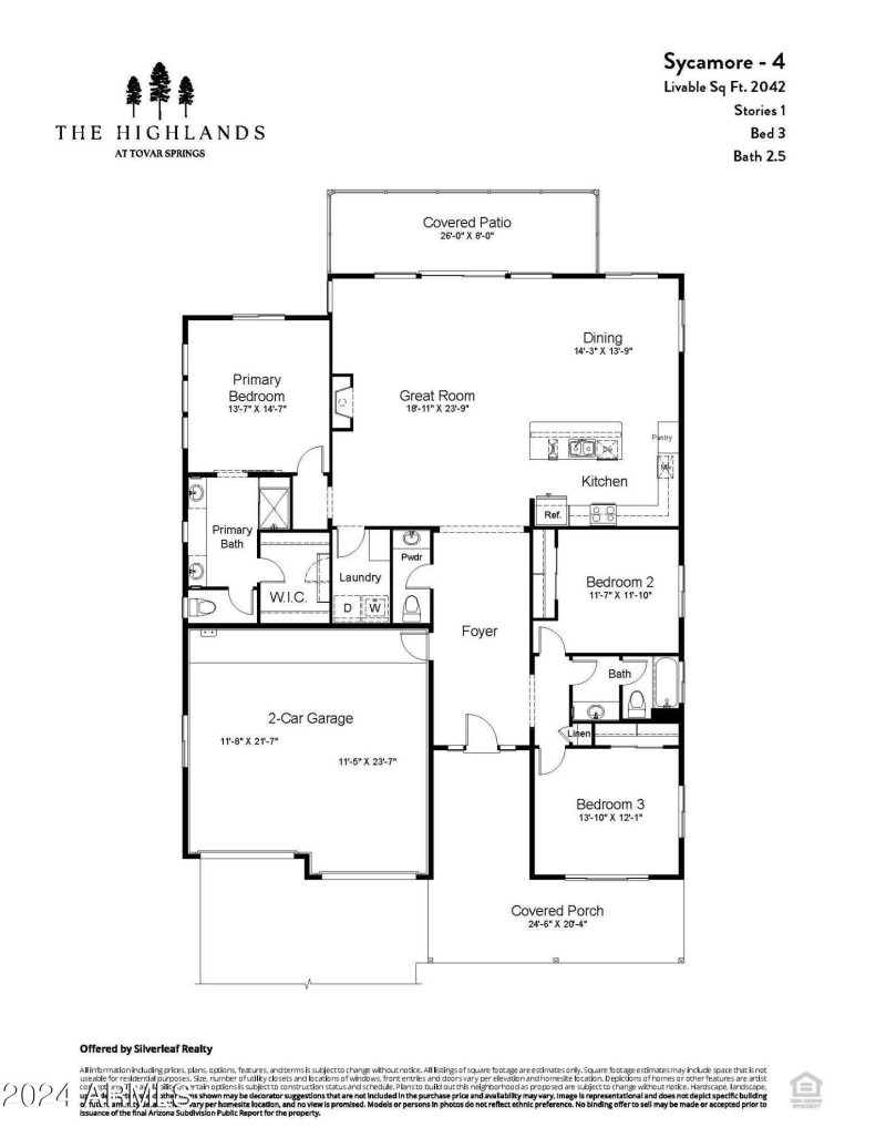
The Sycamore floorplan, a single-story home featuring 3 bedrooms and 2.5 baths, is thoughtfully designed for comfort and flexibility. Located on Homesite #43, this is a unique opportunity to secure a home at introductory pricing. This home is crafted for year-round enjoyment, ideal as a seasonal getaway or a primary residence.
I-17 to Kachina exit, turn onto Kachina Blvd then right on Tover Trail to Entry.
Dwelling Type: Residential
Subdivision: KACHINA HIGHLANDS PHASE 1
Year Built: 2025, County: N/A
I-17 to Kachina exit, turn onto Kachina Blvd then right on Tover Trail to Entry.
Listing is courtesy of Silverleaf Realty