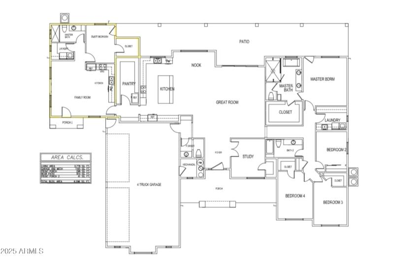
Your dream home is coming in 2025! A custom-built residence sitting on 1.25 acres with an INCLUDED 40x50 RV garage. This home offers 5 bedrooms and a dedicated office that can easily be used as a 6th bedroom. One wing of the home has private living quarters with its own kitchenette, ideal for guests or multi-generational living. This home combines quality craftsmanship with modern luxury, offering exceptional high-end finishes throughout, including a metal roof, upgraded cabinet and lighting packages, a 4-truck garage and thoughtfully designed front yard landscaping. Now is your chance to own a stunning home with enough space and storage for animals, trailers, RV's and more!
South on Schnepf. East on Weston Lane to lot on right hand side.
Dwelling Type: Residential
Subdivision: N/A
Year Built: 2025, County: N/A
South on Schnepf. East on Weston Lane to lot on right hand side.
Listing is courtesy of Better Choice Homes, LLC
Sign in to your account to continue