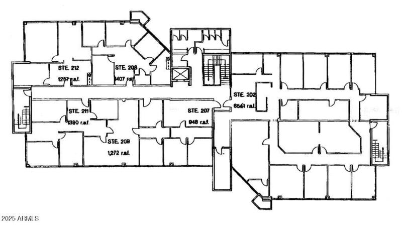
Located in Scottsdale's vibrant business district, 7585 E Redfield Rd offers flexible, modern office spaces perfect for businesses of all sizes. The property features customizable layouts, high-speed internet, spacious conference rooms, and a professional lobby. With easy access to major highways and ample on-site parking, this location ensures convenience for both employees and visitors.
Take advantage of this exceptional opportunity to position your business in one of Scottsdale's most desirable areas.
West on Redfield to property
Dwelling Type: Comm/Industry Lease
Subdivision: THUNDERBIRD INDUSTRIAL AIRPARK NO. 4
Year Built: 1984, County: N/A
West on Redfield to property
Listing is courtesy of LRA Real Estate Group, LLC