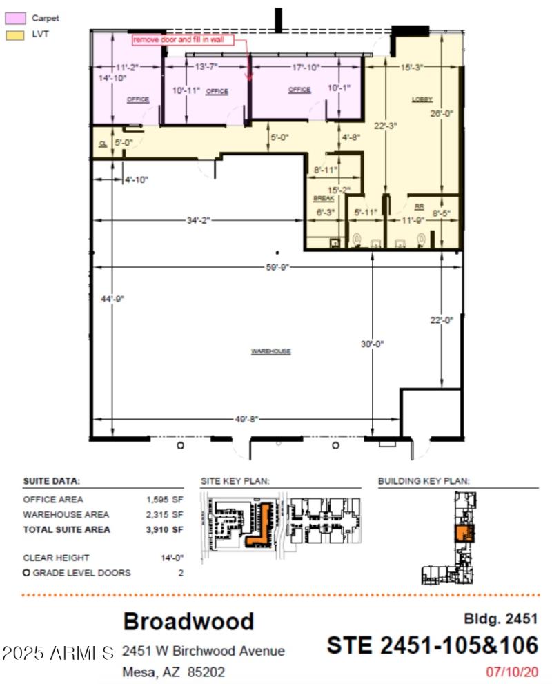
Take advantage of this 3,910 SF sublease opportunity at $1.46/SF NNN, with a master lease expiring December 31, 2026. This versatile space features 1,595 SF of office space, including three professional window offices, a break room/kitchenette, and two restrooms with a shower. The 2,315 SF warehouse is equipped with EVAP cooling and two grade-level roll-up doors, perfect for industrial or storage needs. Located in Mesa's Light Industrial (LI) zone, the property offers frontage on Birchwood Avenue with building signage available.
Dwelling Type: Comm/Industry Lease
Subdivision: N/A
Year Built: 1987, County: N/A
Listing is courtesy of AFFIRE, LLC