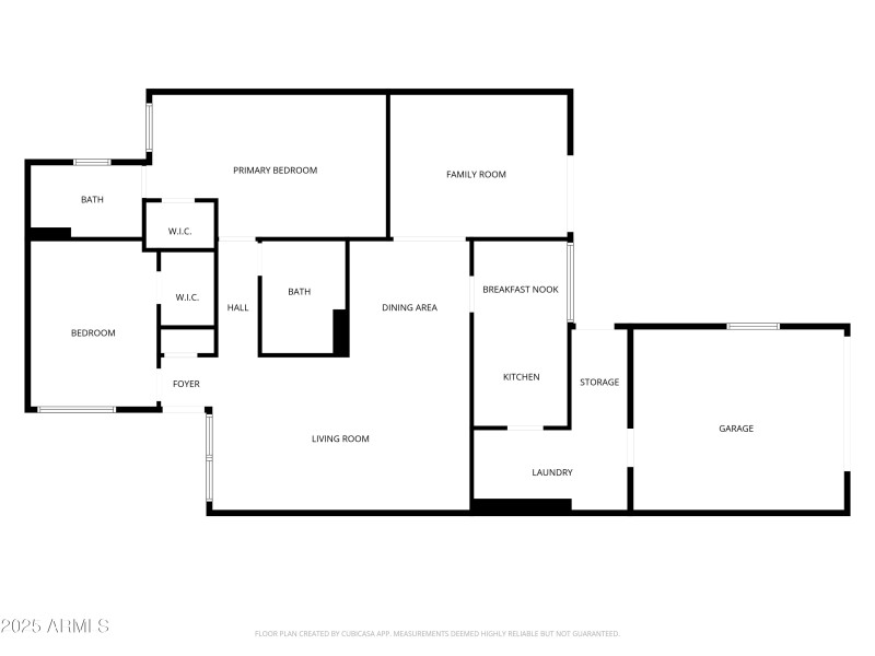
TURN KEY 2-bed, 2-bath garden home in the heart of Sun City. Includes private backyard and garage with cabinets.  Living in the coveted and historic Sun City with the convenience of this well cared for home and the 8 recreation centers a short golf cart ride away. Recent upgrades: AC 2019, Water heater 2024, roof 2021. Recently installed luxury plank vinyl flooring throughout. Spacious living room and formal dining area open to a bonus multi-use room. The large master suite features a walk-in closet, walk-in shower and space for a sitting area or desk. The second bedroom also offers a walk-in closet. The kitchen includes a smooth top electric stove, refrigerator and dishwasher.  Custom enclosed laundry area with bonus storage. Garage cabinets. Low payment leased solar. 
 Grand, N On Del Webb, W On Santa Fe to Property. 
 
                                                        Dwelling Type: Residential 
                            Subdivision: SUN CITY UNIT 15-D PER MC 
                            Year Built: 1976, County: N/A 
                            Grand, N On Del Webb, W On Santa Fe to Property.
                        
Listing is courtesy of eXp Realty