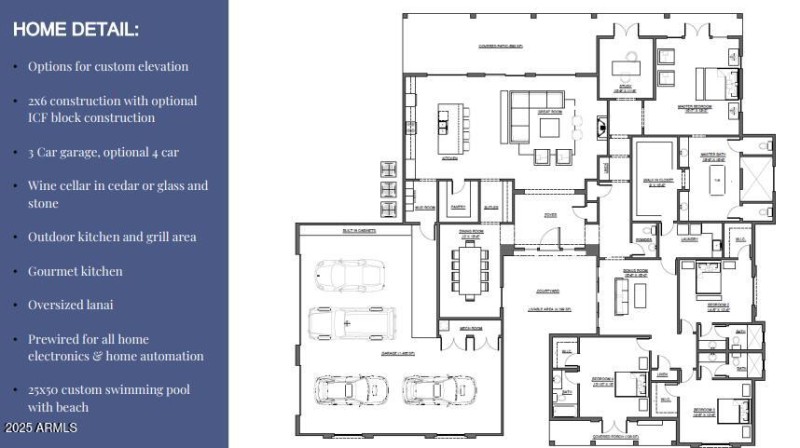
This is your opportunity to build an exquisite custom home in the sought-after Estrella Mountain community of Goodyear. Set on an expansive lot, this residence offers a rare blend of luxury, space, and personalization—providing the perfect canvas for your dream home.
Designed around a captivating great room floor plan, this home invites you to tailor every detail to your vision. From flooring to finishes, buyers have the exclusive opportunity to hand-select their desired style, creating a living space that is truly one-of-a-kind.
At the heart of the home lies a stunning gourmet kitchen where function meets elegance. Choose your preferred stone for the island, countertops, and backsplash, while enjoying top-tier features including soft-close cabinets, a pot filler, and a spacious butler's pantry with separate prep area. With 42" upper cabinets and 30" lowers, storage is plentiful, and the 3cm edge profile on all counters adds a refined touch.
Throughout the home, 8" baseboards, solid core doors, and your choice of 12x24 or 24x36 tile in all wet areas contribute to a cohesive and luxurious aesthetic. Each bathroom is finished with custom stone and tile showers, with the master bath boasting a spa-like dual body system and satin nickel Moen fixtures.
Step outdoors into a private resort-style retreat. A fully equipped outdoor kitchen with a grill, icemaker, and dual-burner cooktop sets the stage for unforgettable gatherings, while the wood-burning fireplace invites cozy evenings under the stars. The showstopping 25x50 swim-up beach pool with spill-over hot tub offers the ultimate in relaxation and entertainment.
For effortless hosting, a dedicated wet bar complete with sink, refrigerator, and icemaker ensures drinks are always on hand.
Indulge in the opportunity to create your dream home with this exceptional custom residence. From the meticulously designed kitchen to the luxurious outdoor oasis, every detail has been carefully considered to provide the ultimate in comfort, style, and functionality. Embrace the chance to curate a space that reflects your unique vision, and experience the epitome of elegance and refinement in this remarkable custom home. Renders are for visualization purposes only and do not represent finishes. Buyer has the opportunity to pick the style & finishes of their liking.
West on Elliot Rd, North on S San Gabriel Dr, East on W Estes Way to property.
Dwelling Type: Residential
Subdivision: ESTRELLA MOUNTAIN RANCH PARCEL 76
Year Built: 2025, County: N/A
West on Elliot Rd, North on S San Gabriel Dr, East on W Estes Way to property.
Listing is courtesy of Best Homes Real Estate
Sign in to your account to continue