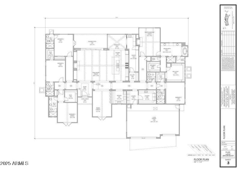
Shovel Ready Half Acre Lot in Arcadia Proper - Package Includes Plans, Permits - The plans call for a 4,910 sqft house with 5 beds, 5.5 baths, formal dining, breakfast nook, butler's pantry, oversized pantry, oversized laundry, 3 car garage, pool, multiple gas fireplaces & more. Renowned Arcadia Builder Dan McIntyre of McIntyre Development has a projected cost proposal to build at $2,350,000 to build (based on typical Arcadia Proper finishes).
Dwelling Type: Residential
Subdivision: CASA LINDA LOT 24-44
Year Built: 2025, County: N/A
Listing is courtesy of HomeSmart
Sign in to your account to continue