An exceptional opportunity in one of Flagstaff's most sought-after neighborhoods, just blocks from downtown! This unique property features two detached homes on one lot, combining historic charm with unmatched convenience. Perfect for investors, multi-generational living, or future redevelopment potential.
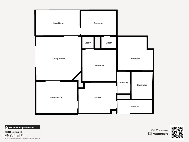
This one-of-a-kind property includes a beautifully preserved single-level 3-bed/ 1-bath Craftsman bungalow, built in 1917! Rich with character, it showcases original woodwork and timeless architectural details that reflect its heritage. The spacious layout and welcoming ambiance make it a standout primary residence or income-producing rental.
The second home is a 1-bed, 1-bath cottage with a unique backstory. Stories have been told that it once served as the spring house, with a well in the basement! With its rock wall construction and historical significance, it's said the street name was inspired by this very home, adding unique value and storybook charm.
Both homes have a strong rental history and are located just a short distance to Flagstaff's beloved Sunday farmers market, local trails, and some of the city's best dining and coffee spots. The designated off-street parking for both properties is a life-saver during Winter months!
Opportunities like this are rare, where historic charm, location, and versatility come together in the heart of Flagstaff.
Owner carry options available.
Head west on Santa Fe Ave. Turn left onto W Summit Ave. Turn left at the 2nd cross street onto S Spring St. Property is on the corner of Summit and Spring.
Dwelling Type: Multiple Dwellings
Subdivision: N/A
Year Built: 1917, County: N/A
Head west on Santa Fe Ave. Turn left onto W Summit Ave. Turn left at the 2nd cross street onto S Spring St. Property is on the corner of Summit and Spring.
Listing is courtesy of Flagstaff Top Producers Real Estate
Sign in to your account to continue